
Закрыть
Татьяна Филиппова Filippova
Фото из статьи
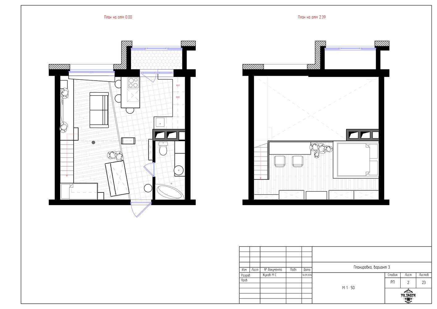
Как дизайнеры увеличили площадь квартиры на 15 квадратов5,0
– 3 отзыва
Гамма
Другие фото в этом проекте
Сохранить
Подобрать товары
Закрыть
Сервис

Разрешить использование cookies?
Мы используем cookies для удобства и персонализации. Подробности в Политике конфиденциальности. Согласие можно отозвать в любой момент.