
Закрыть
Татьяна Филиппова Filippova
Фото из статьи
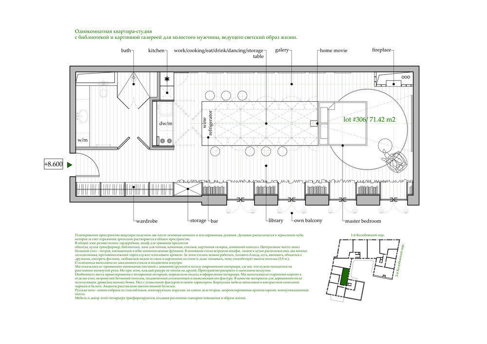
Студия для холостяка с картинной галереей и библиотекой4,7
– 3 отзыва
Гамма
Другие фото в этом проекте
Сохранить
Подобрать товары
Закрыть
Сервис

Разрешить использование cookies?
Мы используем cookies для удобства и персонализации. Подробности в Политике конфиденциальности. Согласие можно отозвать в любой момент.