Сервис

8 (800) 300 61 76
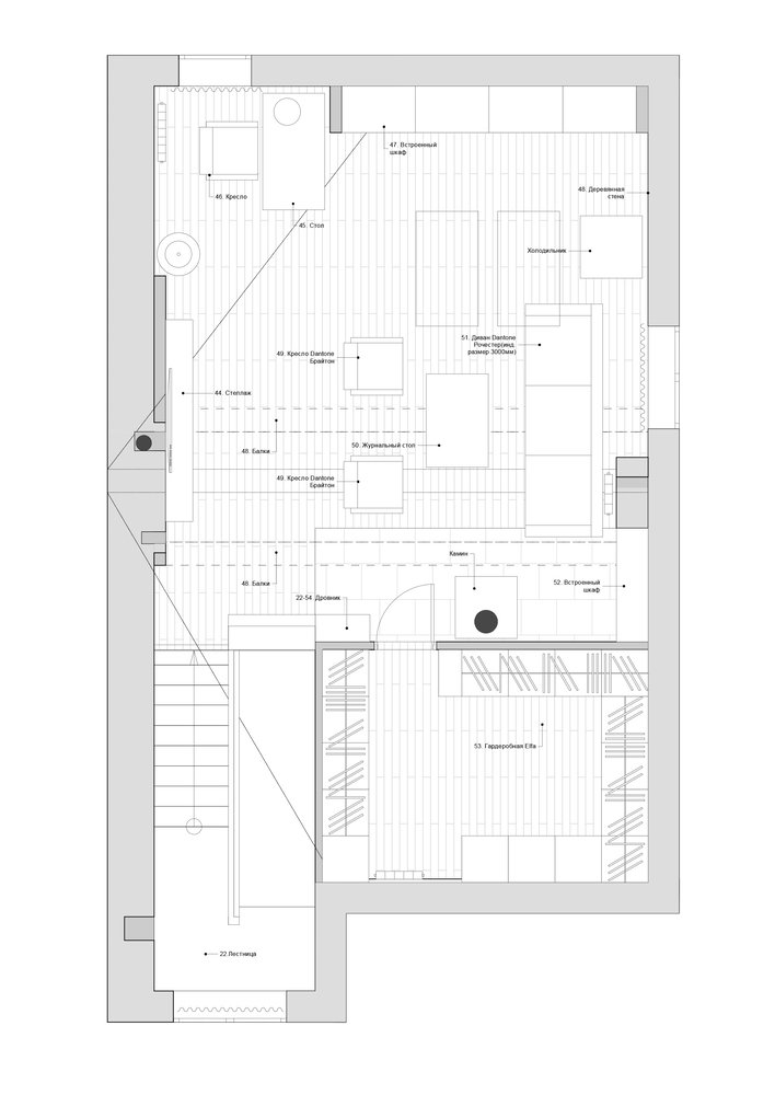
План с расстановкой мебели, 3 этаж
Закрыть
Ирина Собыленская
Дизайнер интерьера
3,5
– 2 отзыва
Гамма
Другие фото в этом проекте
Сохранить
Подобрать товары
Закрыть
Информация