Вкратце
Заказчики купили дуплекс в подмосковном поселке «Европа-3» — по сути это таунхаус, состоящий из двух секций с отдельными входами. Они пригласили профессиональных архитекторов, чтобы придать индивидуальности типовому проекту. Отсутствие внутренних стен и большое количество окон упростили работу. В результате получился настоящий американский дом недалеко от Москвы.
Подробности
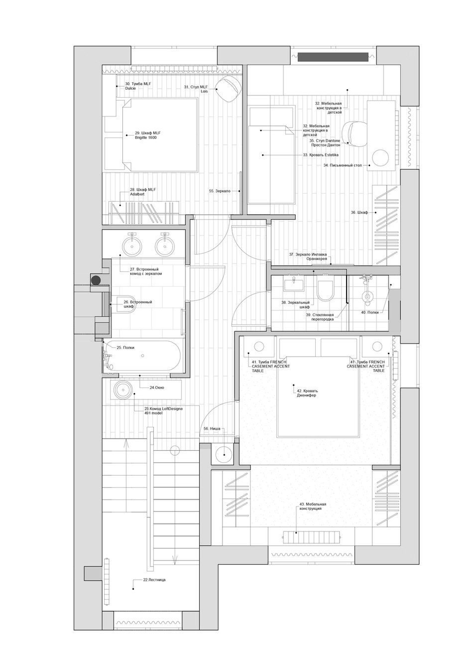
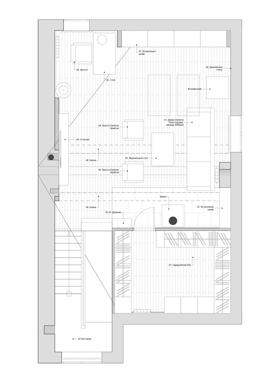
В доме три этажа, и при покупке в нем не было внутренних стен, поэтому работу над проектом архитекторы Дмитрий и Виктория Коротецкие начали с планировки. На первом этаже разместили большую кухню-гостиную с обеденным столом и зоной отдыха, гостевой санузел с прачечной. Второй этаж отвели под спальню, детскую и гостевую комнату. Третий этаж полностью мужской — это кабинет заказчика.
Американский стиль прослеживается в отделке во всех комнатах. Узнаваемый элемент — нейтральная светлая краска на стенах и натуральное дерево на полу, классическая лепнина на потолке. Активно использовали обои в спальнях и даже в гостевом санузле. «Не бойтесь клеить обои в ванной. Обычно мы покрываем их матовым светлым лаком — после этого обои можно даже мыть», — рассказывает Виктория Коротецкая.
Для остальных ванных взяли травертин и плитку. В кабинете пофантазировали на тему английского паба. Сюда отлично вписались инженерная доска, потолочные балки и кирпич.
Несмотря на большую площадь дома, систем хранения здесь немного. Редкий случай, когда заказчик не страдает накопительством: авторы проекта предусмотрели одну гардеробную для хранения сезонных вещей, чемоданов на третьем этаже, кладовую для кухонной утвари, солений рядом с кухней. А в комнатах разместили гардеробные шкафы, сделанные на заказ в России.
Мебель в доме тоже с американским акцентом. Кухонный гарнитур установили буквой П, выбрали для него филенчатые фасады — часть из них стеклянные.
Большой полуостров с рабочей поверхностью с одной стороны и барной стойкой с другой — очень «американская» деталь. Чтобы сделать приготовление еды комфортным, над варочной панелью вывели вытяжку.
Для обеденной зоны подобрали массивный деревянный стол и стулья с мягкой обивкой для уюта и комфорта. Мягкие диваны поставили друг напротив друга — идеальное место для дружеской беседы. Конечно, в загородном доме не могли обойтись без камина — пусть и ненастоящего.
«Изначально мы проектировали дровяную топку, но ее установка требовала дополнительных работ, поэтому от этой идеи отказались. Но оставили просто пустой декоративный портал, например, для свечей — он стал одним из центральных элементов интерьера», — говорит Дмитрий Коротецкий.
Расположение декора — ваз, ламп с абажурами, сувениров, привезенных из разных стран, неслучайно. «Хотите создать гармоничный интерьер с американским акцентом? Делайте ставку на симметрию: например, поставьте две одинаковые лампы на каминную полку или одинаковые подсвечники на консоль, повесьте два бра над кроватью», — дают совет авторы проекта.
Финальный штрих в интерьере — текстиль на окнах. На нем экономить не стоит: правильно подобранные шторы с разнообразным принтом объединяют все элементы в единую картину и добавляют уюта.
Планировка
Бренды, представленные в проекте
Холл
Напольное покрытие: плитка, Top Cer
Мебель: шкаф, Dantone Home
Текстиль: шторы, Thibaut
Освещение: технический свет, Astrolighting
Гостевой санузел
Отделка: плитка, Top Cer; обои, Сole & Son
Текстиль: шторы, Thibaut
Кухня-гостиная
Напольное покрытие: керамогранит, Rex; инженерная доска, Coswick
Мебель: диваны, Sits; кухня, «Атлас Люкс»
Текстиль: шторы, Thibaut
Освещение: Gramercy Ноmе; технический свет, Astrolighting
Техника: Smeg
Спальня
Отделка: обои, Fresq
Напольное покрытие: ковролин, Seduction
Мебель: кровать, Dantone Home
Освещение: технический свет, Astrolighting
Ванная
Сантехника: Villeroy & Boch
Смеситель: Grohe
Ванна: Duravit
Детская
Отделка: обои, Sanderson
Напольное покрытие: инженерная доска, Coswick
Мебель: кровать, Estetica
Гостевая спальня
Отделка: обои, BN International
Напольное покрытие: инженерная доска, Coswick
Мебель: My Little France
Кабинет
Отделка: обои, Aura
Напольное покрытие: инженерная доска, Coswick; керамогранит, Rex
Мягкая мебель: Dantone Home
Текстиль: шторы, Fine Textilverlag
Хотите, чтобы ваш проект был опубликован на INMYROOM? Присылайте фотографии интерьера на wow@inmyroom.ru



































