Сервис

8 (800) 300 61 76
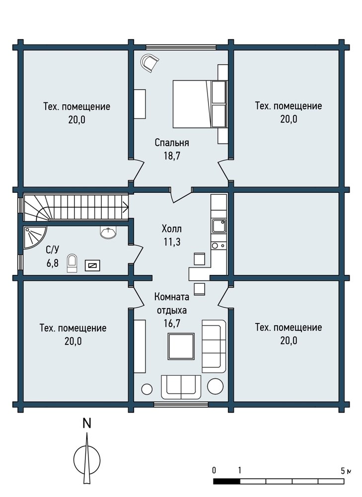
Фотография: Прочее в стиле , Дом, Дома и квартиры, Проект недели, Дача, dom-iz-brusa – фото на INMYROOM
Закрыть
Сохранить
Подобрать товары
Закрыть
Информация