Сервис

8 (800) 300 61 76
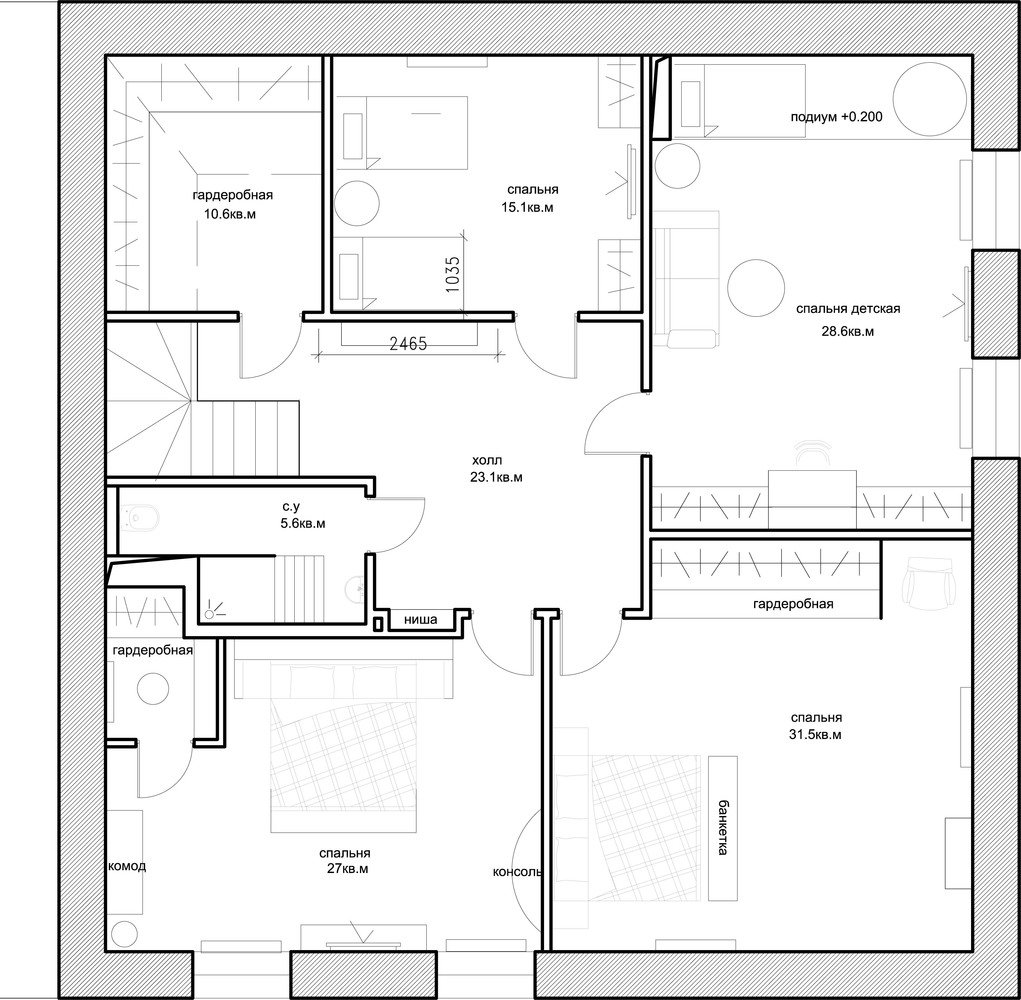
Фотография: Планировки в стиле , Дом, Дома и квартиры, Проект недели – фото на INMYROOM
Закрыть
Сохранить
Подобрать товары
Закрыть
Информация