Сервис

8 (800) 300 61 76
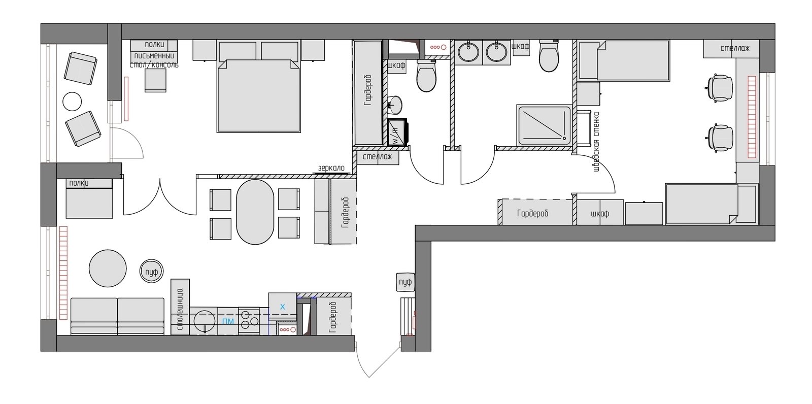
Фотография:  в стиле , Эклектика, Квартира, Проект недели, Москва, 3 комнаты, 60-90 метров, Анастасия Холопцева – фото на INMYROOM
Закрыть
Ирина Собыленская
Дизайнер интерьера
4,4
– 21 отзыв
Гамма
Другие фото в этом проекте
Сохранить
Закрыть
Информация