Сервис

8 (495) 255 78 84
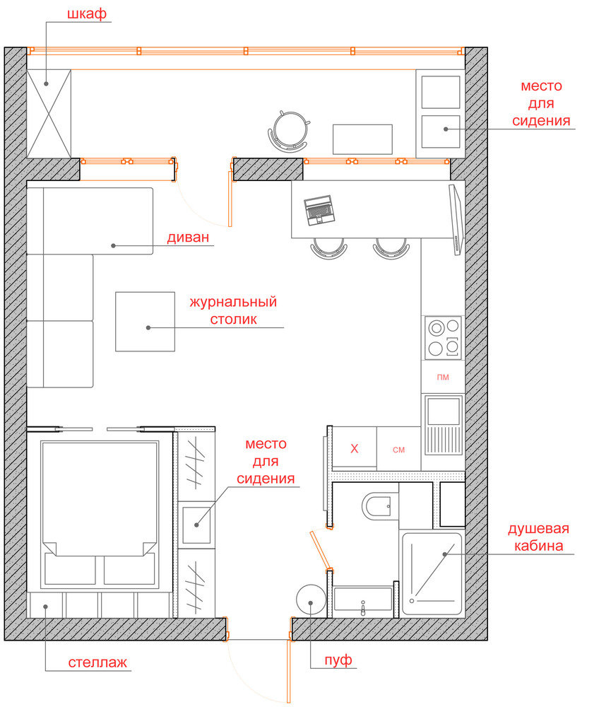
Фотография: Прочее в стиле , Квартира, Планировки, Дома и квартиры, Переделка, Блочный дом, 1 комната, до 40 метров, II-18 – фото на INMYROOM
Закрыть
Olga Lopteva
Журналист
4,4
– 14 отзывов
Гамма
Сохранить
Подобрать товары
Закрыть
Информация