Сервис

8 (800) 300 61 76
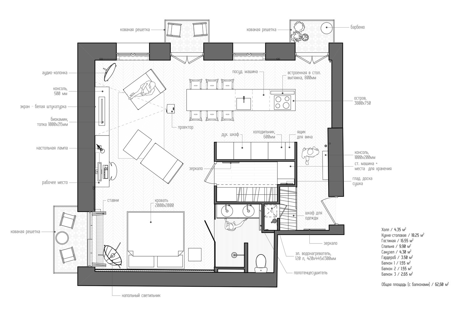
Фотография: Гостиная в стиле Современный, Скандинавский, Квартира, Минимализм, Проект недели – фото на INMYROOM
Закрыть
Tati Grebennique
Фотограф
5,0
– 2 отзыва
Гамма
Другие фото в этом проекте
Сохранить
Подобрать товары
Закрыть
Информация