Сервис

8 (495) 255 78 84
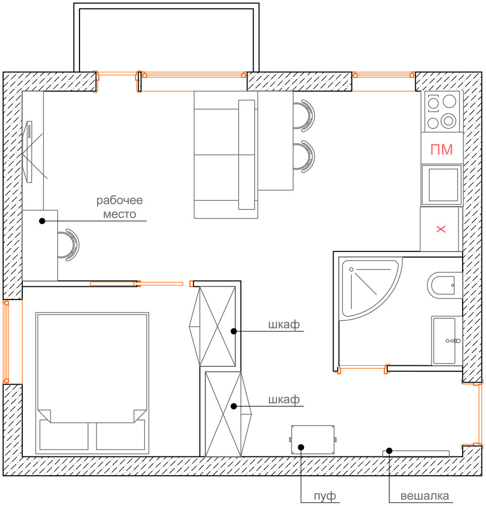
Фотография: Спальня в стиле Современный, Эклектика, Малогабаритная квартира, Квартира, Планировки, Перепланировка, Кирпичный дом, 1 комната, до 40 метров – фото на INMYROOM
Закрыть
Olga Lopteva
Журналист
4,7
– 11 отзывов
Гамма
Сохранить
Подобрать товары
Закрыть
Информация