Сервис

8 (495) 255 78 84
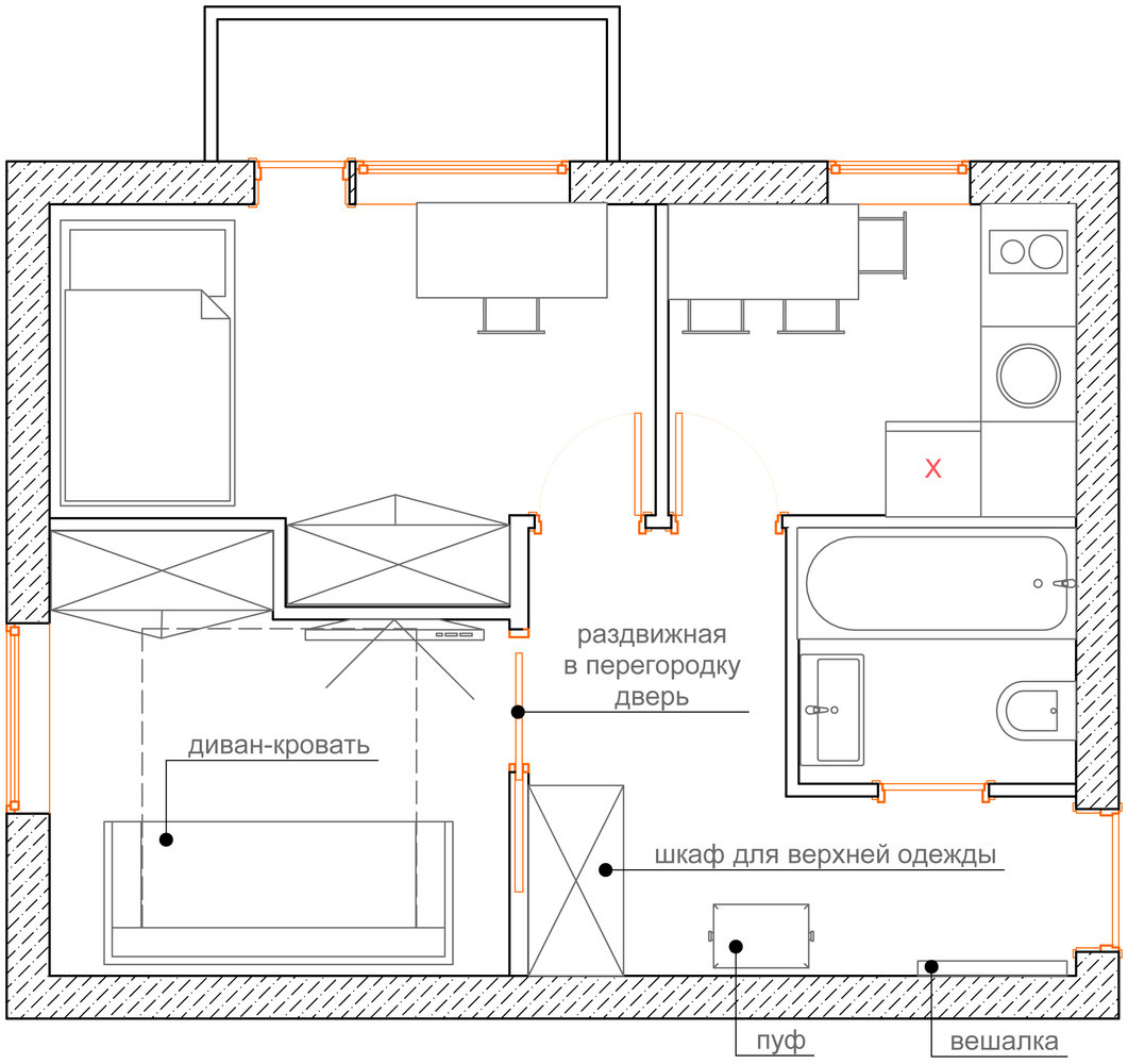
Фотография: Гостиная в стиле Современный, Малогабаритная квартира, Квартира, Планировки, Перепланировка, Кирпичный дом, 1 комната, до 40 метров – фото на INMYROOM
Закрыть
Olga Lopteva
Журналист
4,1
– 7 отзывов
Гамма
Сохранить
Подобрать товары
Закрыть
Информация