Сервис

8 (800) 300 61 76
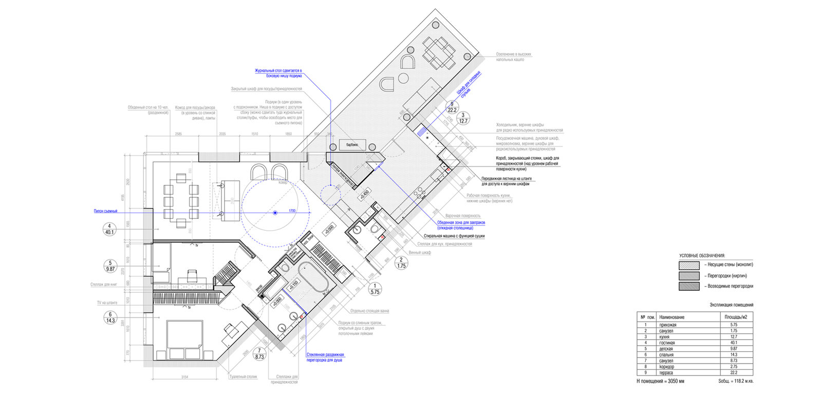
Фотография: Мебель и свет в стиле , Эклектика, Декор интерьера, Квартира, Белый, Проект недели, Бежевый – фото на INMYROOM
Закрыть
Сохранить
Подобрать товары
Закрыть
Информация