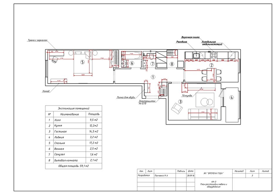
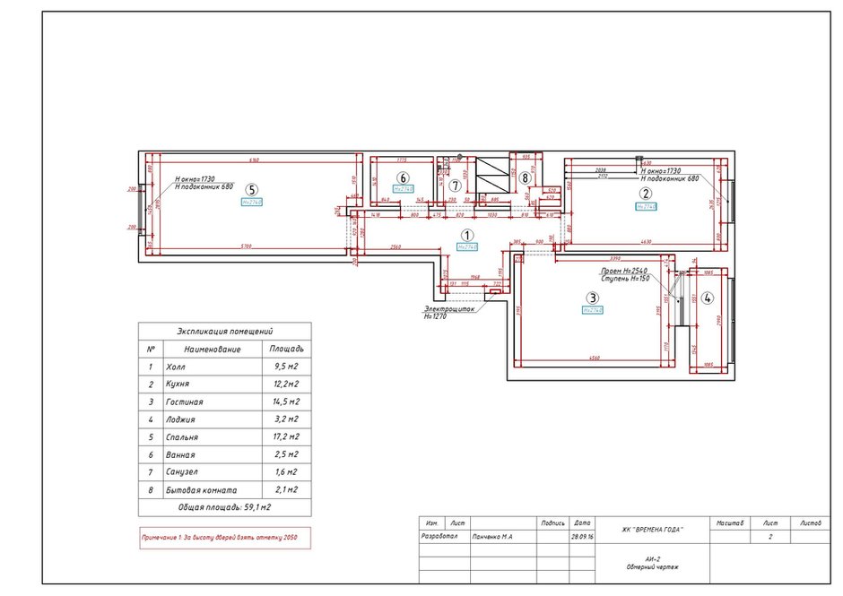
В квартире будет проживать молодая девушка, которая работает юристом в международной компании. Ей хотелось получить лаконичный, универсальный интерьер «без бантиков и рюшечек». К тому же нужно было обойтись без перепланировки: дизайнер Мария Панченко просто поменяла комнаты местами. На месте гостиной оборудовали спальню, а общественную зону разместили рядом с кухней – это логичнее и удобнее.
Материалы преимущественно натуральные: для стен взяли обои под покраску, шведские обои с принтом, качественный ламинат. Интересное оформление изголовья в спальне: это панели до потолка, обтянутые текстилем. Для ванной подошла недорогая плитка Italon.
«Так как перепланировку мы не делали, пришлось организовывать системы хранения в уже имеющемся пространстве. В квартире предусмотрена бытовая комната: все несезонные вещи будут лежать там. В спальне – встроенный шкаф. Заказчица не так часто готовит, но кухню мы все равно спроектировали по всем правилам эргономики: с большим количеством ящиков и полок и удобной рабочей поверхностью», – рассказывает Мария Панченко.
В основе интерьера – бежево-коричневые оттенки с розовыми и фиолетовыми акцентами. Такая палитра не надоедает, способствует отдыху, хозяйка легко сможет подобрать декор сама – а это тоже важно.
При выборе мебели Мария Панченко обращала внимание на лаконичные формы, отсутствие богатой отделки, минималистичный дизайн. Так появились мягкие обеденные стулья с хромированными ножками, кровать с мягким изголовьем в виде подушек, невесомые прикроватные столики-тарелки. Текстиль и декор «сглаживают» углы: струящиеся шторы, «вязаный» ковер, декоративные подушки сделали обстановку уютнее.
Планировка
Бренды, представленные в проекте
Холл
Отделка: краска, Little Greene
Напольное покрытие: Italon Urban
Текстиль: Pittera
Декор: Zara Home
Освещение: встроенные светильники, SLV
Гостиная
Отделка: шведские обои, Ecco wallpaper
Напольное покрытие: ламинат, Svensson Parkett
Мебель: диван, Genius Park; пуф, мастерская «Кресло»
Текстиль: Pittera
Декор: Zara Home
Освещение: SLV, Arte Lamp
Спальня
Отделка: Ecco wallpaper; краска, Little Greene
Напольное покрытие: ламинат, Svensson Parkett
Мебель: кровать, DMI; столики, Cosmo
Текстиль: Pittera; H&M Home
Декор: H&M home
Кухня
Отделка: краска, Little Greene
Напольное покрытие: Italon Urban
Мебель: cтол, Tulip
Ванная комната
Отделка: Italon Urban
Напольное покрытие: Italon Urban
Мебель: Jacob Delafon
Гарнитур: Jacob Delafon
Смесители: Jacob Delafon
Освещение: SLV
Хотите, чтобы ваш проект был опубликован на INMYROOM? Присылайте фотографии интерьера на wow@inmyroom.ru
Создайте интерьер с товарами из магазина InMyRoom:










































