Главная задача, которую пришлось решать дизайнеру Алене Юдиной — продуманное хранение. Заказчики, молодая пара с малышом, ведут активный образ жизни, занимаются спортом, поэтому дизайнеру пришлось искать место не только для одежды и хозяйственных принадлежностей, но и для таких предметов, как волейбольные мячи и теннисные ракетки.
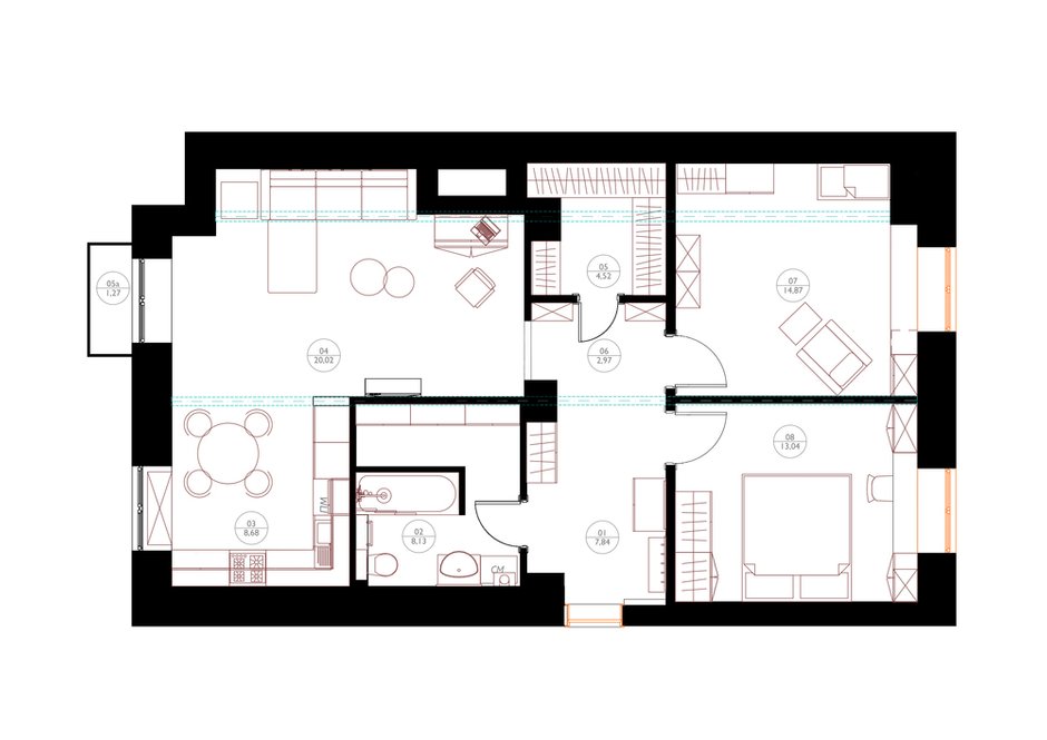
Еще одну задачу поставили перед дизайнером два ригеля, пересекающие квартиру. Первый удалось обыграть, устроив под ним зоны отдыха в гостиной и детской — потолок над диваном и детской кроватью опустился до 2,45 м, но так как здесь предполагается проводить время большей частью в горизонтальном положении, высокий потолок не нужен.
Вторая линия ригеля вписалась в планировочное решение — она почти по всей длине скрыта стеной, а над кухней и прихожей образует арку. Алена решила подкрепить горизонтальные линии контрастным лепным декором — так в квартире появились карниз, плинтус и декоративный молдинг.
Найти место для хозяйственной комнаты в большой сталинской квартире удалось без особого труда: ванную объединили с туалетом и частью коридора, где и устроили кладовую. Под гардеробную пришлось отдать часть площади самой большой из комнат, которая после перепланировки стала детской.
Личные гардеробы есть в каждой из комнат, но дизайнер постаралась сделать так, чтобы они не бросались в глаза. Шкаф в прихожей спрятали максимально: он выкрашен в цвет стен, декорирован лепниной и снабжен системой открывания типа push to open.
Все комнаты объединяет светло-зеленый цвет стен, которому сложно дать точное название. Дизайнеру нравится определение sea salt. Оттенок очень свежий, при этом не холодный, способствующий отдыху и умиротворению. Второй цвет — серый, в него выкрашены дверцы кухонных шкафчиков и лепные карнизы, примета классического интерьера.
Тему современной классики поддерживает камин в гостиной и «винный погребок» на кухне — дизайнер собирается переоборудовать доставшийся в наследство от архитекторов «холодный» шкаф под винный. А еще в этой квартире будет классический французский балкон — открытый, с кованной решеткой и окнами в пол.
Планировка
Бренды, представленные в проекте
Холл
Отделка: краска, Little Greene
Мебель: комод, полка и скамья, ИКЕА; зеркало, Dantone home; шкаф для одежды и стеллажи изготавливаются на заказ
Освещение: люстра, Loft industrial; потолочный светильник, ИКЕА
Гостиная
Отделка: краска, Little Greene
Мебель: диван «Вереск», divanchikov.ru
Текстиль: Sanderson
Освещение: Branching babble chandelier
Кухня
Отделка: плитка, Equipe Carrara
Напольное покрытие: Equipe Carrara
Мебель: венские стулья и стол, Hoff; гарнитур, Кухни Марии
Бытовая техника: Gorenje
Смесители: Blanco
Освещение: Flos Sky garden
Спальня
Отделка: краска, Little Greene
Мебель: изготавливается на заказ
Освещение: люстра и бра, Arte Lamp
Детская
Отделка: краска, Little Greene
Мебель: ИКЕА; рабочее место у окна и стеллаж, изготавливаются на заказ
Текстиль: Scion Levande Fabrics, Cykel
Освещение: Mantra
Ванная комната
Отделка: плитка, Kerama Marazzi
Напольное покрытие: плитка, Kerama Marazzi
Санфаянс: Roca
Освещение: Eglo, Palermo
Хотите, чтобы ваш проект был опубликован на INMYROOM? Присылайте фотографии интерьера на wow@inmyroom.ru
Читайте также
Создайте интерьер с товарами из магазина InMyRoom:












































