Заказчица любит готовить, поэтому на кухне надо было разместить много встроенной техники: духовой шкаф, пароварку, микроволновую печь, кофе-машины. А кроме того, предусмотреть много места для хранения посуды и продуктов. Так появилась сплошная стена из белых фасадов на кухне и вторая, обшитая досками разного размера, с емкостями для зеленых растений – домашний вертикальный сад.
На таком же контрасте дизайнер Кристина Перевышина построила отделку всех помещений: но если в кухне основной цвет – белый, то в остальных помещениях фоном служит серый цвет. Строгость и холодность серых стен контрастирует с теплотой и богатой текстурой дерева. Чтобы стены не выглядели скучными, вместо обычной краски использована краска с металлизированными хроматическими добавками, благодаря которым оттенок краски меняется в зависимости от угла падения света.
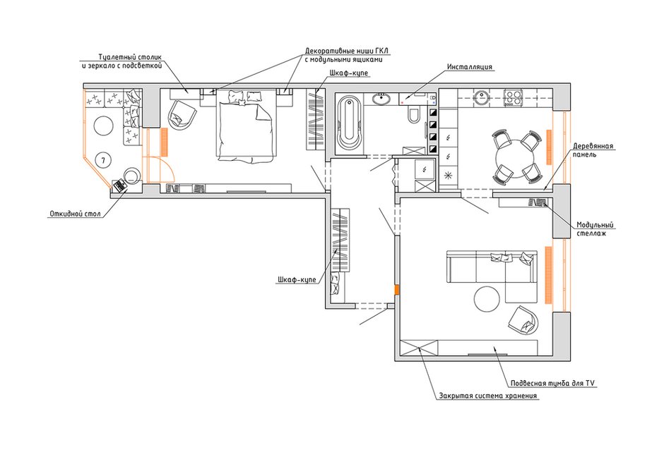
Для заказчиков было принципиально важно большое количество разных систем хранения. В прихожей дизайнер расположила большой шкаф-купе, в котором могли бы храниться уличная одежда, обувь, спортивный инвентарь. Для личных вещей предусмотрела еще один шкаф-купе в спальне. Есть еще дополнительный шкаф в гостиной и небольшие узкие шкафчики в зоне ТВ в спальне.
Вся корпусная мебель, включая кухонный гарнитур, разрабатывалась индивидуально под нужды заказчика и изготавливалась на заказ. Дизайнер выбирала простую в своем облике, лаконичную мебель, которая соответствовала бы заданному стилю и не утяжеляла бы восприятия объема в целом. Она гармонично вписывается в пространство и является неотъемлемой его частью. Текстиль в интерьере подчиняется общей идее – натуральные неброские по текстуре и цвету ткани смягчают интерьер.
Планировка
Бренды, представленные в проекте
Холл
Отделка: краска, Oikos Encanto
Напольное покрытие: паркетная доска, Finex
Мебель: тумба-скамья с вешалкой и шкаф-купе изготовлены на заказ по эскизам дизайнера
Освещение: встроенный свет, Deltalight
Гостиная
Отделка: краска, Oikos Encanto
Напольное покрытие: паркетная доска, Finex
Мебель: диван, Poliform Shangai; кресло, B&B Italia; журнальный стол, Normann Tablo
Техника: TV Samsung
Освещение: встроенный свет, Deltalight
Кухня
Отделка: краска, Oikos Encanto
Напольное покрытие: плитка, Kerama Marazzi
Мебель: стол и стулья, Royal Botania; гарнитур выполнен на заказ по эскизам дизайнера
Бытовая техника: Bosch
Освещение: встроенный свет, Deltalight; подвесные светильники, Muuto
Спальня
Отделка: краска, Oikos Encanto
Напольное покрытие: паркетная доска, Finex
Мебель: кресло и кровать, B&B Italia; корпусная мебель изготовлена на заказ по эскизам дизайнера
Техника: TV Samsung
Освещение: люстра, Karman
Ванная комната
Отделка: керамическая плитка, Porcelanos, REX Ceramiche
Напольное покрытие: керамогранит, Italon
Мебель: корпусная мебель изготовлена на заказ по эскизам дизайнера
Санфаянс: Duravit
Смесители: Grohe
Освещение: встроенный свет, Deltalight
Хотите, чтобы ваш проект был опубликован на INMYROOM? Присылайте фотографии интерьера на wow@inmyroom.ru
Читайте также
Создайте интерьер с товарами из магазина InMyRoom:






























