Двухкомнатная квартира площадью 78 квадратов имеет неплохие исходные данные: комнаты просторные, изолированные и выходят на две стороны света, окна большие, а потолки высокие. Арт-директор «Студии 3.14» Ирина Леготкина учла все особенности квартиры и разработала три удачные планировки для холостяка, пары и семьи с двумя детьми.
Краткая информация
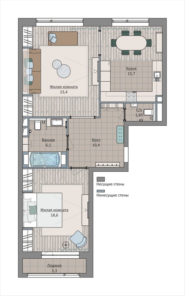
Удобство планировки двухкомнатной квартиры в ЖК «Символ» в том, что спальню от общественного пространства кухни-гостиной отделяет санузел и холл, поэтому ничто не будет мешать комфортному отдыху. Отсутствие внутри квартиры несущих стен позволяет объединить кухню-гостиную и изменить траекторию передвижения по квартире, обустроить гардеробную или ниши для шкафов в холле.
Квартал современного жилья бизнес-класса «Символ» удобен как активному молодому человеку, так и семьям с детьми. Первый оценит динамичность жизни на границе с Центральным административным округом Москвы: до Садового кольца всего
Вариант 1: для холостяка
Для человека, который живет один и ценит комфорт, сделаем перепланировку и придадим помещениям правильную форму. Для этого заложим вход на кухню из холла и организуем дверной проем из гостиной. Это позволит на кухне установить вместительный П-образный гарнитур со всей необходимой встроенной техникой. У окна появится большой обеденный стол на 6 персон.
В гостиной симметрично установим удобный диван и пару стеллажей или витрин для книг и предметов декора. Рядом у окна поставим кушетку, чтобы можно было разместить всех гостей. Спальню оставим в первоначальных границах. Подберем для нее двуспальную кровать и встроим по обе стороны от нее шкафы для одежды, которые соединим антресолью. Поскольку потолки трехметровые, активно используем их высоту для обустройства систем хранения.
После перепланировки в холле появится удобная ниша для узкой обувницы. Здесь же установим мини-диван, открытую вешалку для одежды и зеркало. Основная ванная комната просторная, поэтому подберем для нее большую ванну 900х1900 см, установим раковину с тумбой и систему хранения для бытовой химии, косметики и банных принадлежностей.
Идеи для интерьера: мебель и декор
Вариант 2: для пары
Для супружеской пары средних лет, наоборот, закроем вход в гостиную из холла и оставим дверь на кухню. Оставшийся простенок позволит встроить большой угловой гарнитур и установить раскладывающийся обеденный стол на шесть персон. Проход из кухни в гостиную расширим и закроем стеклянными раздвижными дверьми, чтобы при необходимости помещения можно было разделить. Такая планировка позволит всю торцевую стену в гостиной отвести под шкафы и ТВ-зону, а у окна установить большой угловой диван и комфортное кресло для чтения.
В спальне помимо большой двуспальной кровати и шкафа предусмотрим кресло и туалетный столик, совмещенный с тумбой под телевизор. В холле на месте заложенного прохода в гостиную можно встроить шкаф для верхней одежды. Места хватит для открытой вешалки, оттоманки и зеркала. Для основного санузла выберем полноразмерную ванну и большую раковину с зеркалом. Здесь же установим небольшой шкафчик для бытовой химии и косметики.
Идеи для интерьера: мебель и декор
Вариант 3: для семьи с двумя детьми
Если в квартире планирует жить семья с двумя детьми, то спальню переоборудуем в детскую. Установим двухъярусную кровать, пару рабочих столов и платяных шкафов – у каждого ребенка собственный. Гостиную совместим со спальней родителей, поэтому диван выберем с функцией раскладывания. У стены напротив установим стеллаж и комод с телевизором.
Гостиная – единственное пространство, которое затронет перепланировка. Немного уменьшим ее площадь, чтобы обустроить гардеробную. Там будет удобно не только хранить все необходимые вещи, но и спортивный инвентарь, например, велосипеды, лыжи и сноуборды. Проем между гостиной и кухней увеличим и установим раздвижные двери. Кухонный гарнитур выберем угловой, но дополним его барной стойкой.
Небольшой простенок в коридоре, ведущем на кухню из холла, позволяет установить узкий шкаф для обуви. А в сохранившуюся нишу в прихожей встроим шкаф для верхней одежды. Для большой семьи в основном санузле предусмотрим не только угловую ванну увеличенного размера, но и другую необходимую сантехнику.
Идеи для интерьера: мебель и декор
На обложке: дизайн-проект «Студии 3.14».








