Вкратце
Дизайнеры объединили две соседние квартиры, чтобы создать комфортное пространство для проживания семьи с ребенком. Площади хватило и на обустройство единой кухни-гостиной, и приватных спален. Правда, без сложностей не обошлось: все коммуникации и газовый котел нужно было спрятать. Для этого придумали специальный шкаф.
Подробности
Заказчики — семья с ребенком — долго находились в поисках дизайнера для воплощения идеи идеальной квартиры. И после двух месяцев поиска остановили выбор на профи из студии Lineika Design.
При этом работа над проектом шла дистанционно: обмерные чертежи заказчики выполняли самостоятельно, а первое «живое» знакомство с дизайнерами произошло после 3 месяцев онлайн-общения на этапе авторского надзора.
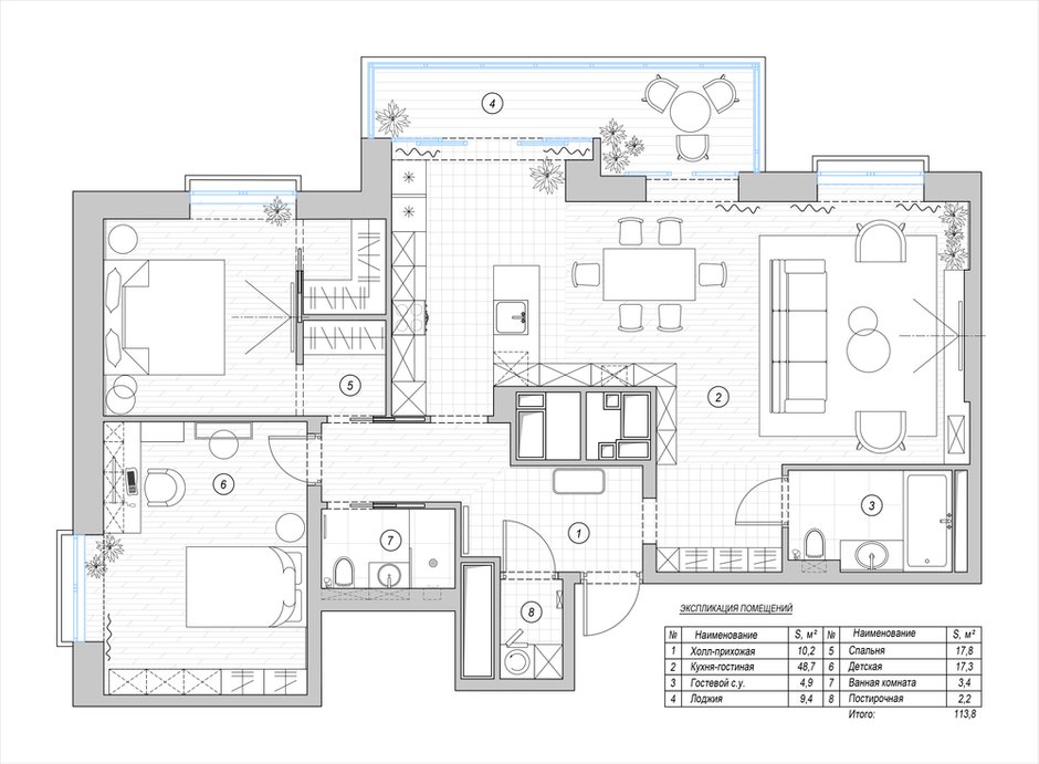
Чтобы получилась удобная трешка, объединили соседние однокомнатную и двухкомнатную квартиры.
Функционально пространство разделили на жилую и гостевую зоны. В первую входят спальня с гардеробной, детская, душевая комнаты. Во вторую — кухня-гостиная-столовая и лоджия. Заказчики любят принимать гостей, поэтому остановились на студийной планировке общественного пространства — когда зоны перетекают одна в другую.
Одна из особенностей квартиры — ее расположение. Из панорамных окон открывается вид на исторический центр города — Смоленский кремль. Чтобы подчеркнуть вид и улучшить естественное освещение гостевой зоны, дизайнеры объединили лоджию с кухней с помощью раздвижной оконной системы. А мебель в комнате поставили так, чтобы отовсюду просматривались окна.
Исходную высоту потолков сохранили, используя накладные светильники и люстры. Усилить эффект высоких потолков помогли двери скрытого монтажа от пола до потолка.
Натуральные материалы, обои, камень, мрамор — все это дизайнеры использовали в отделке стен, пола. Расширить пространство помогли ростовые зеркала, зеркальные панно разных размеров с фацетами.
Для оформления зоны камина подобрали 3D-мозаику теплого оттенка. В проекте два санузла — ванная комната и душевая. В их отделке использовали травертин и мрамор.
«Так как мы объединяли две квартиры, на их границе оказалось много проблемных мест — коммуникации, газовый котел, инженерные сети. Чтобы их спрятать, мы придумали хитрый шкаф-стеллаж от пола до потолка — он вмещает газовый котел, фановую трубу, разводку газовых труб. Также используется как буфет, стеллаж и система для хранения», — рассказывает главный дизайнер Никита Михайлов.
Прихожую продлили в сторону ванной комнаты и гостиной — так получилось разместить шкаф для верхней одежды. В хозяйской спальне спроектировали отдельную гардеробную.
До знакомства с дизайнерами заказчики хотели оформить квартиру в скандинавском стиле. Но в процессе концепция поменялась — получилась современная обстановка в духе контемпорари, в которой сочетаются известные бренды с менее узнаваемыми. Заказчики в восторге — и это главное.
Планировка
Бренды, представленные в проекте
Холл
Отделка: краска, Dulux
Напольное покрытие: керамогранит, Sant'Agostino; инженерная доска, Barlinek
Мебель: вешалка, Porada; банкетка, Cosmorelax
Освещение: накладные светильники, SLV; подвес, Saint
Ванная комната
Отделка: керамогранит, La Fabbrica Castle
Смеситель: Fantini Rubinetti
Сантехника: унитаз, Villeroy & Boch; раковина, Roca
Освещение: накладные светильники, SLV; бра, Restoration Hardware
Кухня-гостиная
Отделка: краска, Dulux; мрамор, Bianco Carrara; 3D-мозаика, L'Antic colonial
Напольное покрытие: керамогранит, Sant'Agostino; инженерная доска, Barlinek
Мебель: диван, Ditre Italia; стулья, Molteni&C; стол, Elvis, Cattelan Italia; журнальный столик, Classicon; кресло, Wooddi Design
Освещение: накладные светильники, SLV; люстра, Lindsey Adelman Studio
Лоджия
Отделка: краска, Dulux
Напольное покрытие: террасная доска, Holzhof
Мебель: кресло, Vinotti; столик, Zara Home
Освещение: накладные светильники, SLV
Спальня
Отделка: краска, Dulux; обои, Wall & Deco
Напольное покрытие: инженерная доска, Barlinek
Мебель: кровать, Ditre Italia; столики, Zara Home
Ковер: Dovlet House
Освещение: накладные светильники, SLV; люстра, Arteriors; бра, Wooddi Design
Детская
Отделка: краска, Dulux
Напольное покрытие: инженерная доска, Barlinek
Мебель: кровать, Twils; столик, Cosmorelax; ковер, Dovlet House; стул, Loft Concept
Освещение: трековая система освещения, SLV
Душевая комната
Отделка: керамогранит, Grasaro
Гарнитур: Villeroy & Boch
Смеситель: Fantini Rubinetti
Сантехника: унитаз, Villeroy & Boch; раковина, Roca
Освещение: накладные светильники, SLV
Постирочная
Отделка: краска, Dulux
Напольное покрытие: керамогранит, Sant'Agostino
Освещение: накладные светильники, SLV
Хотите, чтобы ваш проект был опубликован на INMYROOM? Присылайте фотографии интерьера на wow@inmyroom.ru















