Вкратце
Проект этого просторного дома — отличный пример функционального минимализма. Общественный первый этаж решен так же, как в современных квартирах-студиях: кухня, гостиная и столовая собраны в одном пространстве. Личная половина дома, напротив, разделена на приватные комнаты, в которых будет удобно каждому члену семьи.
Подробности
В семье заказчиков двое детей, которые уже учатся в университете, поэтому нужно было для каждого члена семьи спроектировать отдельное пространство, где можно уединиться и отдохнуть. При этом общая зона с большой кухней и гостиной тоже была обязательна: семья любит проводить время вместе.
«Работа над проектом не предполагала существенной перепланировки. Заказчики знали, чего хотят, пришли к нам с планом — мы его только подкорректировали», — говорит Павел Герасимов.
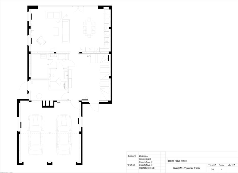
На первом этаже находится кухня с вместительной обеденной зоной и гостиная с телевизором и камином. Остальную площадь занимает лестница, санузел, сауна и прихожая. На втором этаже организовали личные комнаты. Спальню заказчиков оформили в отдельный блок с собственной ванной и гардеробной. Соседние комнаты — это кабинет и две спальни для сына и дочери.
«С планировкой третьего этажа пришлось повозиться из-за неудобного расположения несущих балок — нужно было подстраиваться под них. По нашей задумке здесь будут зона отдыха, гостевая спальня и кладовка», — рассказывают дизайнеры.
Во всех спальнях на полу будет инженерная доска, в кухне и гостиной — керамогранит. Стены — под покраску, на первых двух этажах использовали декоративную штукатурку под бетон и стеновые шпонированные панели. В «мокрых» зонах сочетали керамогранит и рейки.
Площадь дома позволяет сделать много мест для хранения. В прихожей на первом этаже предусмотрели два шкафа: один под лестницей, второй — напротив нее, оба будут сделаны на заказ. Для гардеробных выделили место в спальне заказчиков и в комнате дочери. В спальне сына решили обойтись шкафами и полками.
В санузлах над унитазом спроектировали полки для дополнительного хранения и там же спрятали коммуникации. В доме есть еще и постирочная: здесь разместили стиральную и сушильную машины.
Заказчики хотели сделать интерьер по возможности в теплых тонах: их фавориты — кофейный и шоколадный оттенки. Для контраста дизайнеры сочетали их с серо-голубыми и сине-зелеными цветами — такое решение хозяевам дома понравилось.
Еще одно пожелание заказчиков — мебель бренда BoConcept. Обеденный стол и стулья, диван, журнальный столик и желтое кресло, диван в кабинет дизайнеры взяли именно этого производителя. Мебель на втором этаже практически вся будет сделана на заказ.
В проекте много трековых светильников. А в гостиной и кухне дизайнеры предложили разместить по периметру потолка ниши со встроенными накладными светильниками. «Именно здесь получилось самое большое количество светильников, так как приличную площадь потолка надо было как-то обыграть», — рассказывает Павел Герасимов.
Декора немного: несколько картин в черных рамках, композиция из дров в нише у камина. И, конечно, планируется много текстиля: шторы, декоративные подушки, ковры для создания уютной домашней атмосферы.
Планировка
Бренды, представленные в проекте
Холл
Отделка: декоративная штукатурка, Cebo Time
Напольное покрытие: керамогранит, Tubądzin
Мебель: вешалка-стойка, Metro
Гостиная
Отделка: декоративная штукатурка, Cebo Time
Мебель: диван угловой и кресло, BoConcept
Освещение: напольный светильник Kuta, BoConcept
Спальня
Отделка: декоративное покрытие микробетоном, Seni Beton
Мебель: пуф, Cosmorelax
Освещение: лампа напольная Buckle Head, Zuiver; подвесные светильники Coltrane, Loft Design
Кухня
Напольное покрытие: керамогранит, Unicom Starker
Мебель: обеденный стул Lausanne, BoConcept; обеденный стол Milano, BoConcept
Смеситель: Grohe
Освещение: подвесные светильники, Gubi
Ванные комнаты
Отделка: керамогранит, Tubądzin; керамогранит, Porcelanosa
Напольное покрытие: керамогранит, Tubądzin
Смесители: Grohe; смеситель для ванны с душевым гарнитуром и ручной душ, Hansgrohe
Санфаянс: подвесной унитаз и биде, Villeroy & Boch
Хотите, чтобы ваш проект был опубликован на INMYROOM? Присылайте фотографии интерьера на wow@inmyroom.ru
























































