Кэрол Уайтинг более 20 лет помогала своему мужу-архитектору и после развода неожиданно стала владелицей небольшой дизайнерской студии в Мельбурне.
Теперь у Кэрол есть команда из четырех человек и заказчики с интересными проектами. Например, один из заказчиков попросил отреставрировать дом с историей и при этом сохранить его атмосферу.
Как выглядел дом до ремонта?
Как выглядит дом после ремонта?
Фасад здания постройки конца XIX века сохранили в его первоначальном виде — это было пожелание заказчиков. Только железные детали вроде балясин на балконе покрасили в черный цвет.
Сома Джованни и Том Карсон, заказчики, купили этот дом у людей, которые занимаются строительством. Поэтому к моменту покупки помещения были наспех оштукатурены. В отделке использовались дешевые материалы, и ребята решили восстановить первоначальный вид дома. И предусмотреть при этом все необходимое для комфортной жизни.
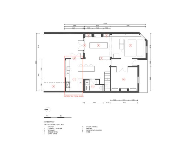
Первый этаж расширили с 80 до 85 квадратов. Здесь обустроили большую кухню для всей семьи, столовую, гостиную, домашний офис, прачечную и санузел.
В кухню изначально вел проход из коридора, но Кэрол решила полностью снести стену и добавить пространству простора. Том лично выложил одну из стен кирпичом. Кэрол предложила выкрасить ее в белый, но владелец дома настоял на своем — и в итоге все остались довольны.
Чтобы зонировать помещение кухни-столовой, дизайнер установила кладовые шкафы. А на противоположной стене замаскировала вход в санузел и прачечную с помощью мебельных ручек в тон фасадам. При желании их можно использовать как крючки для сумок. Кстати, все фасады обшили вагонкой.
На второй этаж ведет старинная лестница — ее тоже удалось отреставрировать и заново покрасить. Кэрол даже задействовала пространство под ступеньками и сделала шкафчики для хранения.
Наверху расположили три спальни и ванную комнату. В спальне раньше был старинный камин, который занимал много места, так что от него отказались — ради систем хранения. Например, у изголовья кровати по бокам есть незаметные полки.
Из главной спальни можно выйти на французский балкончик. А с первого этажа можно попасть на задний двор с уличным душем. Здесь спрятался небольшой сарай для хранения велосипедов и садовых принадлежностей — его тоже обшили вагонкой.
















