Над декором минималистичного дома, расположенного в Монреале (Канада), работала команда архитектурного бюро Nature Humaine. Двухэтажный дюплекс площадью 149 квадратных метров претерпел реконструкцию: он превратился в один большой дом, а его площадь увеличилась на 40 квадратных метров.
Теперь новое здание кардинально отличается от остальных домов обычной улочки Монреаля. На его фасаде появилась стена ярко-желтого и зеленого цвета и большие окна, благодаря которым дом всегда полон света.
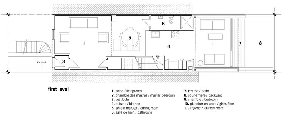
Но главная особенность дома - это окно в крыше и стеклянный пол в центре дома, благодаря которым естественный свет проникает на все этажи.
Архитектор Stéphane Rasselet рассказал, что такие «просветы» часто делают в центре домов: «Стеклянный пол обеспечивает визуальную связь между столовой на первом этаже и холлом наверху. Без него ценная площадь на втором этаже просто потерялась бы».
Также работа над интерьером заключалась в том, чтобы выявить и подчеркнуть красоту существующих деревянных конструкций стен и балок, поддержав их природными материалами.
«Несущие стены здания были построены из массива дерева и похожи на бревенчатую хижину, но с плоскими гранями, - рассказывает Rasselet. - Мы хотели сохранить их, поскольку были уверены, что наши клиенты по достоинству оценят тепло, исходящее от древесины, а также скрытую в ней историю дома и яркий контраст с новыми современными элементами».
Архитектор сохранил оригинальные балки и доски и использовал их для создания деревянной стены возле лестницы. Они же вставлены в межпотолочное пространство под застекленной крышей.
Дом получится просторным и очень гостеприимным. На первом этаже находятся большая гостиная и столовая, кухня и еще одна новая комната для отдыха с примыкающими к ней террасой и патио.
На втором расположены ванная комната и две спальни. Одна выходит окнами на улицу, а вторая - на внутренний дворик, который летом всегда полон цветов.













