Для небольших пространств и холостяков идеально подходит планировка студии: квартира выглядит просторной, наполненной светом и воздухом. А зонировать ее всегда можно при помощи ловких профессиональных приемов. Дизайнер этого проекта Людмила Родина нестандартно подошла к зонированию помещения и вместо мебели использовала свет, который визуально делит интерьер на функциональные части. Подробнее о проделанной работе Людмила рассказала читателям InMyRoom.
Заказчик и пожелания
Заказчик этого проекта — молодой человек, холостяк. Он очень предприимчивый и любит активный отдых. Хозяин квартиры хотел, чтобы она была оформлена в современном молодежном стиле. На сегодняшний день для этого наиболее подходят стили лофт и фьюжн. Когда мы предложили поработать в этом направлении, заказчик подхватил нашу идею и стал активно вникать во все детали проекта. Это помогло ускорить работу.
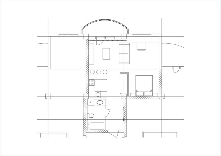
Планировка
Поскольку все конструкции в квартире несущие, то демонтировать стены было нельзя, и в этом, кстати, заключалась часть сложностей.
Хранение
В проекте мы старались сохранить максимум пространства, поэтому уместили шкафы в стены, разделяющие зоны, и в ниши. Например, стена между кухней и спальней — это большой шкаф-купе. В рабочей зоне также есть отсек, который уместился в неглубокой нише. Боковую область дивана мы оборудовали столиком-подставкой и нижней полкой для хранения дисков, книг и мелочей.
Свет
Свет в этом проекте играет важную роль — он зонирует пространство. В каждом источнике света есть светодиодные лампы. В прихожей мы больше использовали споты фирмы Philips Pillar, подсветили декор на стенах при помощи светильников от Globo Picture; в кухню повесили рельсу. В спальне мы сделали подкарнизную подсветку при помощи светодиодной ленты. Все светильники приобретались в Барнауле.
Цвет
Здесь мы планируем сделать светлую студию с яркими акцентами. Основной цвет в проекте — белый, а ярких акцентов мы добавили с помощью желтых, фиолетовых и бордовых вкраплений в текстиле.
Мебель
Вся корпусная мебель и диван выполнены на заказ в нашем мебельном цехе.
Декор и текстиль
Большая часть декора переедет в квартиру с прежнего места жительства заказчика, а текстиль мы собираемся приобрести в одном из шоу-румов Барнаула.
Стиль
Практически каждый проект — это смешение различных стилей. В данном случае за основу мы взяли лофт. Свободная планировка и мебель квартиры напрямую отсылают к такому интерьерному решению: сочетание кожаного дивана с современной техникой и аксессуарами и микс черно-белых граффити и пестрого текстиля. Наш лофт мы дополнили стилем фьюжн. Он выражается в ярких принтах на шторах и фиолетовых акцентах на стенах.
Сложности
Небольшая сложность возникла при утеплении лоджии и замене стеклопакета, а в остальном все идет гладко.
Сроки
Для реализации проекта необходимо около 6–8 месяцев.
Метраж
Общий метраж – 46 квадратных метров.
Утепленная лоджия-столовая – 6 квадратных метров.
Гостиная-спальня – 27,5 квадратных метра.
Кухня-прихожая – 12,5 квадратных метра.
Высота потолков – 2,7 метра.
Советы читателям InMyRoom
- Если возможности открыть кирпичную кладку нет, используйте в интерьере декоративный камень.
- Сочетайте старинную мебель с современной техникой.
- Продумайте места для хранения. Для встраиваемого шкафа можно использовать одну из стен в квартире.
- Подчеркните выбранный стиль живописью или скульптурами.
Планировка
Бренды, представленные в проекте
Кухня
Отделка: стены и потолок под покраску.
Напольное покрытие: керамогранит «Италон» серия Urban.
Гарнитур: выполнен по индивидуальному заказу.
Бытовая техника: морозильник Bosch Gud, холодильник Bosch Kur, вытяжка Krona Mini 600 Inox, Варка Zigmund & Shtain CNS.
Освещение: над барной стойкой подвесные светильники Arte Lamp Cappello, шинная система в кухонной зоне — SLV, подсветка рабочей зоны — встроенная в нижнюю часть кухонных шкафов светодиодная лента.
Столовая
Шторы: сшиты на заказ в шоу-руме.
Пол: керамогранит «Италон» серия Urban.
Свет и мебель: Index Living Mall.
Гостиная
Отделка: все стены в зоне ТВ — декоративный кирпич (новосибирская фабрика «Сад камней» серия «Каталония» или «Новониколаевский»), покрашенный водоэмульсионной краской, в рабочей зоне — стены под покраску.
Напольное покрытие: напольный ламинат Parador.
Мебель: диван выполнен по индивидуальному заказу, стол в рабочей зоне, шкаф и полка в ТВ-зоне выполнены по индивидуальному заказу, стул Genova.
Текстиль: римские шторы.
Декор: фотографии, живое дерево (пальма), статуэтки из магазина Index Living Mall.
Техника: перевезена с прежнего места проживания.
Освещение: споты Philips Pillar и светодиодный светильник Varton.
Спальня
Отделка: фотообои с выбранным принтом «Черно-белые граффити» на стене у изголовья.
Напольное покрытие: напольный ламинат Parador.
Мебель: кровать, полки — выполнены по индивидуальному проекту дизайнера.
Текстиль: покрывало сшито на заказ в шоу-руме.
Декор: фотографии и постеры на верхней полке у изголовья.
Освещение: подкарнизная подсветка светодиодной лентой и прикроватные настольные светильники.
Коридор
Отделка: декоративный цемент.
Напольное покрытие: керамогранит «Италон» серия Urban.
Мебель: корпусная на заказ.
Потолок: покраска водоэмульсионной краской.
Освещение: споты Philips Pillar.





















