«Основной задачей проекта было сделать удобный, максимально свободный мужской интерьер, – рассказывает дизайнер Евгения Ермолаева. – Поскольку хозяин оформлял квартиру для души, она в полной мере должна была отражать его характер: спокойный и самодостаточный».
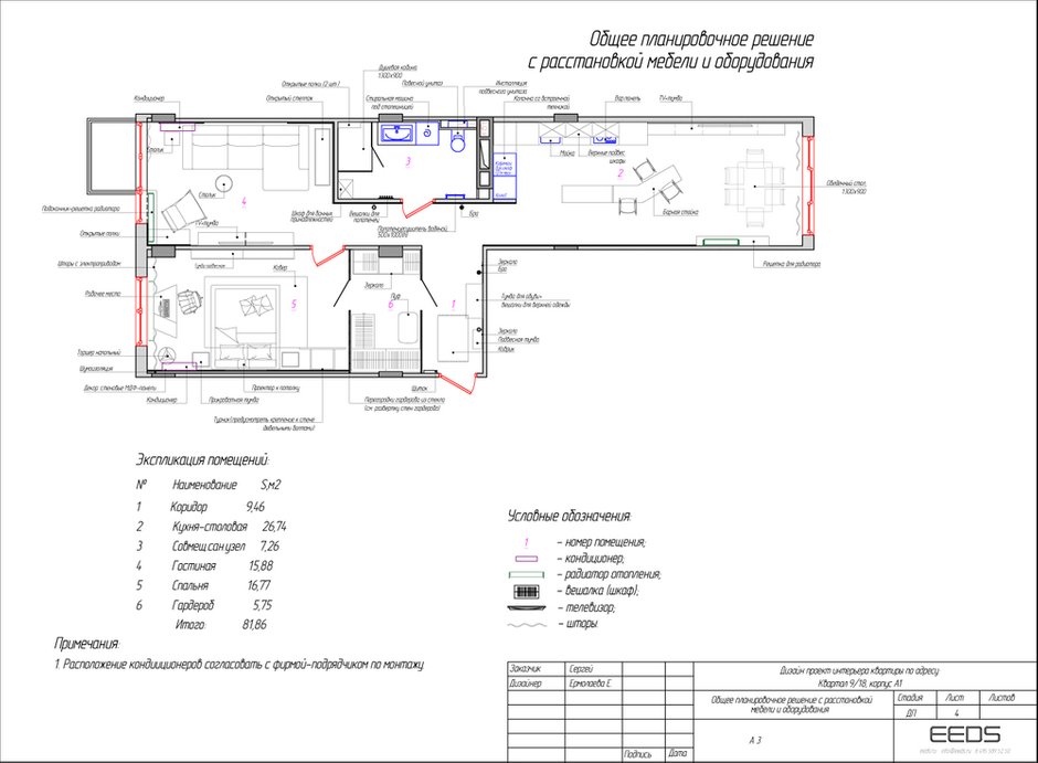
Планировка всей квартиры придерживается определенной геометрии. Кухня столовая и гостиная соединяются прямой линией. «Мы убрали лишние проемы, чтобы визуально увеличить пространство, и придать ощущение общего пространства», – комментирует автор проекта.
Из раздельных санузлов сделали один совмещенный – получилась просторная ванная комната.
Интересным решением стало расположение полноценной проходной гардеробной комнаты в самом центре квартиры. Боковые стены этой зоны выполнены из тонированного стекла, что дает небольшое преимущество — дополнительную инсоляцию в прихожей.
В оформлении дизайнер сделала ставку на спокойные, приглушенные оттенки. В прихожей зоне и кухне для отделки пола использовали керамогранит серого цвета с легкой каменной текстурой. На контрасте с холодным материалом в других зонах эффектно смотрится паркетная доска теплого оттенка.
Стены и потолок покрыли декоративной краской с бетонирующим эффектом. Современное и брутальное решение – то, что нужно для мужского интерьера.
«Декоративный кирпич, связывающий общей идеей зону столовой и гостиной – пожелание клиента, ему очень нравится этот материал», – добавляет Евгения Ермолаева.
В спальне на стене примыкающей к изголовью кровати дизайнер использовала мягкие панели с эко кожей. Тем же материалом отделана стена коридора, в качестве акцента.
А в гостиной центральное место занимает тонкий керамогранит под оникс. Он сам по себе как материал самодостаточен, а его интересный узор добавляет лоска интерьеру.
Мебель для квартиры подобрана так, чтобы своим видом дополнять его. Одним из критерием послужило качество и высокий срок службы изделий, а также простота в уборке и функциональность: ведь, напомним, этот интерьер создавался для души.
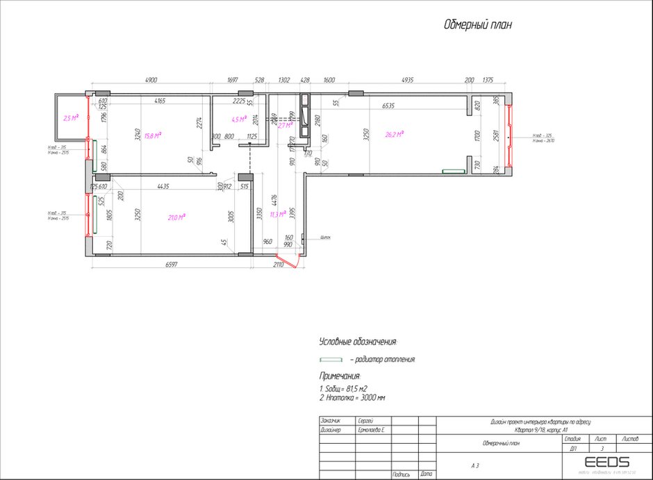
Планировка
Бренды, представленные в проекте
Отделка: Baldini
Напольное покрытие: Caesar Керамогранит Trace Allumina
Мебель: «Стильные кухни», Роникон
Освещение: Deltalight
Гостиная
Отделка: Baldini, Керамогранит Rex
Напольное покрытие: Barlinek
Мебель: Estetica, Стеллаж Horizon R-1
Ковер: BoConcept
Освещение: Deltalight
Спальня
Отделка: Tikkurila
Напольное покрытие: Barlinek
Мебель: Estetica
Освещение: BoConcept, Lightstar
Кухня
Отделка: Baldini
Напольное покрытие: Caesar Керамогранит Trace Allumina
Мебель: Scavolini
Гарнитур: «Стильные кухни»
Бытовая техника: Miele
Освещение: Deltalight, Steven Banken, Mantra
Ванная комната
Отделка: Floor Gres Керамогранит Floortech
Мебель: Skvami
Кабина/ ванная/ санфаянс: Grohe
Смесители: Axor
Освещение: Lightstar, Tobias Grau
Гардеробная
Отделка: Tikkurila
Напольное покрытие: Barlinek
Мебель: Роникон, Aristo
Освещение: Lightstar
Хотите, чтобы ваш проект был опубликован на INMYROOM? Присылайте фотографии интерьера на wow@inmyroom.ru
Читайте также:
Создайте интерьер с товарами из магазина InMyRoom:








































