Успешные дизайнеры — «Студия Малицких» и Марина Подъячева сумели превратить типовую трешку в комфортное пространство для семьи с двумя детьми. Какие решения они предложили? Рассказываем.
Краткая информация
У этой трешки есть несколько существенных преимуществ. Это довольно просторные изолированные комнаты и не несущие перегородки, которые облегчат перепланировку. Посмотрим, как их использовали наши дизайнеры.
ТЗ для дизайнеров
Владельцы: семья с двумя детьми одного пола школьного возраста.
Пожелания:- разделить спальню и детскую, в детской можно использовать двухъярусную кровать;
- объединить кухню и гостиную;
- в гостиной предусмотреть дополнительное спальное место — на случай, если останутся гости или бабушка с дедушкой.
- продумать системы хранения – большой семье без них не обойтись;
- грамотно и удобно разместить стиральную и посудомоечную машины.
Решение «Студии Малицких»
Чтобы сократить длинный коридор, дизайнеры предложили поставить стеклянную перегородку между ним и гостиной. Это решение даст больше света, воздуха и визуально объединит пространство. Вход в кухню из коридора убрали.
В прихожей нашлось место для небольшого комода и скамьи с полками для обуви — актуально для большой семьи. Верхняя одежда, которая постоянно находится в носке, поместится на крючках, а для остальной есть небольшой шкаф — его сделали на месте бывшего входа в кухню. В коридоре также разместили антресоль и хозяйственный шкаф — там будут храниться пылесос, гладильная доска и бытовая химия. В том же шкафу есть место для стиральной и сушильной машины.
Как и хотели предполагаемые заказчики, гостиную и кухню объединили. В зоне кухни поместился П-образный гарнитур со всей необходимой техникой, включая посудомоечную машину и отдельностоящий холодильник. Дизайнеры предусмотрели целых 3 рабочих зоны, поэтому при желании на кухне найдется место и для маленьких помощников.
Зона гостиной и столовой объединена. В гостиной предусмотрели диван с раскладным механизмом, а также биокамин и проектор вместо телевизора — предполагается, что именно здесь будет собираться вся семья. В столовой поставили круглый раздвижной стол и сервант.
Ванную и туалет оставили раздельными — это удобнее для большой семьи. В ванной оборудовали душевой угол со скамьей и полками для хранения.
В детской дизайнеры разместили двухъярусную кровать, и поставили большой угловой письменный стол у окна — чтобы дети могли работать и играть вместе. Там же, над столом, предусмотрели видеопроектор — он полностью закроет оконный проем вместо шторы.
В спальне родителей поместилась полноценная кровать и вместительный шкаф, а на балконе — кладовой шкаф и место для сушки белья.
Решение Марины Подъячевой
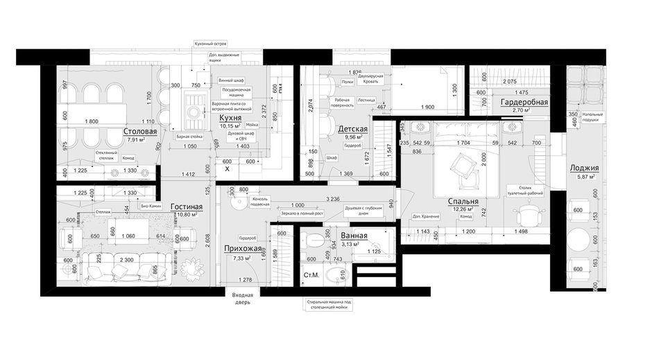
Начиная работу над перепланировкой, в первую очередь я думала о том, получится ли ее согласовать — в данном случае это не сложно, так как кухня остается на своем месте, ванная и санузел объединяются и никакие помещения не заходят в мокрую зону.
При зонировании пространства я отталкивалась от исходной планировки, расположения окон и существующих выстроенных коридоров, а также несущих стен. В итоге получилось объединить санузел, выстроить новую перегородку между детской и родительской спальней, а также между гостиной и кухней-столовой.
В родительской спальне после перепланировки удалось выделить отдельную гардеробную, в комнате поместилась полноценная двуспальная кровать, дополнительные системы хранения, ТВ зона и туалетный столик, который можно трансформировать в рабочий.
Двухъярусную кровать в детской встроили в нишу, там же предусмотрели вместительный гардероб и рабочие места для детей.
В зоне кухни-гостиной за счет перепланировки появилась просторная кухня-столовая с островом, а также угловым кухонным гарнитуром. Там разместили всю необходимую технику, включая посудомоечную машину и винный шкаф. В уединенной гостиной предусмотрели два стеллажа, в которых можно хранить кухонную утварь, а также биокамин и раскладной диван.
В прихожей поместился большой шкаф для верхней одежды, подвесная консоль для важных мелочей, а в коридоре — зеркало в полный рост.
В ванной комнате — встроенная стиральная машина под общей столешницей с умывальником. Вместо ванной решено было сделать душевую с глубоким дном — это удобно для маленькой площади, тем более что маленьких детей в семье нет.
Не забыли и про лоджию, на которой размещается зона отдыха с напольными диванными подушками и кофейная зона.
Итоги подведены редакцией 7 сентября 2018 года.
На обложке: дизайн-проект студии Малицких.





