Вкратце
Хозяин студии — активный молодой человек, студент. Основные пожелания: объединенная гостиная-кухня-столовая, изолированная спальня, совмещенный санузел. Черная кухня, контрастные решения, качественная техника и многообразие сценариев освещения — то, на что сделали акцент в этом интерьере.
Подробности
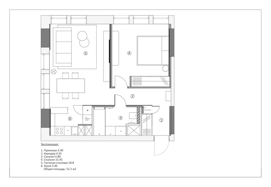
«Пространство имеет целый ряд преимуществ, среди которых — высокие потолки и восемь больших окон. Городской пейзаж органично вливается в интерьер и становится его неотъемлемой частью. Кроме того, он послужил вдохновением для цветовой палитры, — рассказывает автор проекта Анна Смолякова. — Планировка была типовая от застройщика, ее поменяли незначительно.
Гостиную объединили со столовой зоной, кухня вписана в нишу. Гармоничные пропорции квартиры помогли в создании логичной планировки. В коридоре дверь в санузел скрыта в конструкции стеновых панелей, панель продолжается в прихожую, образуя хозяйственный модуль. За скрытой дверью хозблока находятся технические детали, бойлер и бытовые предметы. Часть этой единой стеновой панели закрывает торец встроенных колонн кухни: холодильник, модуль с духовым шкафом и СВЧ. Дверь в изолированную спальню — высокая и незаметная, выкрашена в серый цвет стен».
Кухня получилась компактная, но максимально функциональная. Верхние фасады выполнены на заказ до потолка. Под барной стойкой со стороны кухни предусмотрены полки. Две колонны по 600 мм со встроенной техникой — холодильником, духовым шкафом и СВЧ — вписаны в нишу и скрыты за стеновой панелью коридора.
Стены кухни отделаны крупноформатным керамогранитом в тон фасадов мебели. Этот прием позволил создать целостное восприятие этой небольшой зоны и зрительно объединить мебель со стенами. Контраст матовых фасадов кухни и глянцевой отделки стен с изящной текстурой мрамора создает разнообразие.
Кухня кажется более просторной за счет вертикальной зеркальной вставки на стене у барной стойки. Этот же зеркальный прием прослеживается за диваном в гостиной. Идея состоит в том, что три окна гостиной заключены в зеркальную раму: зеркала отражают пространство, и геометрия интерьера соединяется с ритмами урбанистического пейзажа.
Рельеф белых панелей и рисунок ковра в гостиной, тонкий диагональный орнамент обоев в изголовье кровати придают проекту динамику. Одинаковый серый керамогранит цвета бетона используется в напольном покрытии зон кухни и санузла. В прихожей пол светлый с серым рисунком мрамора для баланса с цветом стен.
«Мне нравится спокойная мебель в гостиной, особенно рыжие кожаные стулья у обеденного стола, торшер с латунным абажуром, который стал видовой точкой при входе в гостиную, и журнальные столики с рифлеными стеклами, отлично вписавшиеся в стилистику.
Ковер гармонично объединяет предметы по цвету, и его рисунок соединяется с диагоналями гипсовых панелей в гостиной, а также взаимодействует с орнаментом обоев в изголовье кровати в спальне», — делится Анна Смолякова.
Эстетика интерьера построена на равновесии однотонных и ритмичных поверхностей. Основа цветовой гаммы — ахроматическая. Это контраст черного, графита и серых тонов. Теплоту придают натуральные текстуры: паркетная доска, панели, кожа.
Среди акцентных оттенков в мебели и текстиле присутствуют сложные серо-синие тона, которые отлично сочетаются с медно-кирпичными вариациями. Плюс чувствуется прозрачность стекла и блеск металлов: латунь, матовые и блестящие оттенки нержавеющей стали.
Светло-серые стены в гостиной стали спокойной базой для выделения акцентных элементов. Например, выступ стены за диваном послужил подсказкой для создания точки фокуса при входе в гостиную. Темный цвет мокрого асфальта этой стены решает сразу несколько задач: становится фоном для декоративного светильника и создает баланс общих пропорций.
«Темно-серые рамы окон, их матовый глубокий оттенок и устремленные вверх пропорции стали геометрической основной для контрастной графики проекта. Черные акценты в мебели, декоре и освещении продолжают линеарную тематику, — рассказывает дизайнер. — Окна привносят легкую ноту стиля лофт. Тема города продолжается в картине Асмик Мелконян „Утро“ напротив дивана».
Интерьер спальни тоже лаконичный и графичный. Архитектура интерьера поддерживается фотоработой «Барселона 5» Артемия Гусева. Матовые брутальные керамические вазы, необычные авторские скульптуры в виде стилизованных кирпичей на подоконнике и в нише в изголовье кровати поддерживают урбанизм и усиливают оттенок стиля лофт в этой мужской квартире.
Черный глянцевый крупноформатный керамогранит с текстурой мрамора с контрастными белыми прожилками — первое, на что обращаешь внимание в санузле. На полу спокойный серый цвет. Высокая дверь — двусторонняя и выкрашена в черный цвет со стороны санузла. Со стороны коридора дверь в санузел отделана шпоном. Шпон в санузле появляется в фасадах тумбы под раковиной и в хранении над инсталляцией.
Предусмотрено два полотенцесушителя: один для сушки полотенец у ванны, второй — небольшой у инсталляции унитаза для мелких предметов одежды. В торце ванны разместилась ниша со стеклянными полками для моющих средств. Под раковину поставили стиральную машину, столешница из искусственного камня выполнена на заказ.
«Изначально в проекте предполагались черная столешница и черная техника. В процессе реализации объекта клиенты приняли самостоятельное решение о замене цвета столешницы и стиральной машины на белый для более легкой уборки. С точки зрения дизайна, черный цвет выглядел более целостно и буквально сливался с темным цветом стен», — рассказывает Анна Смолякова.
Бренды, представленные в проекте
Кухня-гостиная
Отделка: обои, краска, плинтусы, все — Apriоri Home; декоративное покрытие стен Polistof, Cameleo
Мебель: стулья и журнальные столики, ID Collection; обеденный стол, Imodern; тумба под ТВ, ИКЕА
Освещение: торшер в гостиной, ID Collection; Donolux
Гарнитур: «Стильные кухни»
Бытовая техника: Neff; Liebherr
Смесители: Omoikiri
Текстиль и декор: постельное белье, Amalia; подушки и покрывала, Chistetika; плед, H&M Home; рулонные жалюзи, Decorski
Освещение: Donolux
Ванная комната
Отделка: керамогранит, Atlas Concorde
Напольное покрытие: Kerama Marazzi
Освещение: Donolux
Прихожая
Отделка: декоративное покрытие стен Polistof, Cameleo
Мебель: Mr.Doors
Декор: скульптура на столике, Василиса Липатова, галерея Квартира S; шкатулка, Luxury design; фоторабота «Конструктивизм», Дина Александрова
Освещение: Donolux
Спальня
Отделка: обои, краска, плинтусы, все — Apriоri Home
Мебель: шкафы, Mr.Doors; прикроватные тумбы, Moon-stores; подвесная консоль, Parra
Текстиль и декор: постельное белье, Amalia; подушки и покрывала, Chistetika; плед, H&M Home
Хотите, чтобы ваш проект был опубликован на INMYROOM? Присылайте фотографии интерьера на wow@inmyroom.ru

























