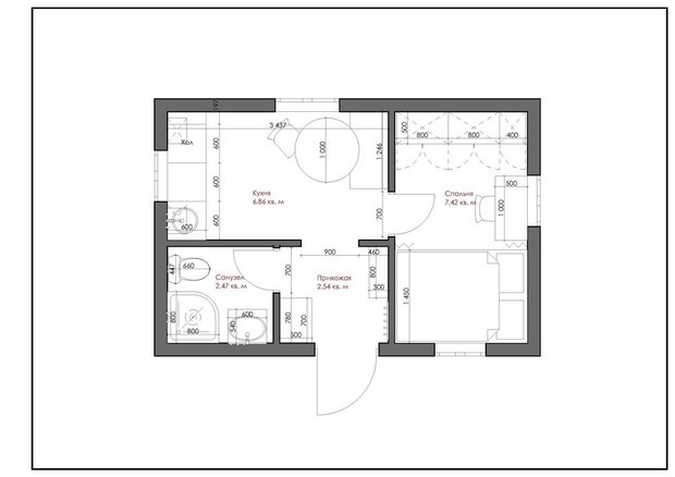
Этот крошечный домик в Смоленской области построен для женщины, которая мечтала о даче — месте, где можно уединиться, читать, шить и встречать летние дни в собственном ритме. Дом разместили на участке семьи, но с отдельным входом и продуманной планировкой: здесь есть все необходимое для комфортного проживания одного человека.
Отдельная спальня, небольшая, но полноценная кухня, душевой санузел и закрытое крыльцо — каждая зона работает на максимум функциональности. Проект реализовала дизайнер Ирина Собыленская: задача была не просто в том, чтобы уместить нужные функции. Интерьер должен был передавать характер хозяйки, напоминать ей о путешествиях, о любимом Петербурге, о детстве.
Так и появился дачный мини-оазис — с оттенками сирени, обоями с цветущими садами, мягкими текстурами и доброй, ностальгической атмосферой.
Кухонную зону в этом мини-доме оформили как уютное летнее кафе — с мягким диванчиком у стены, яркой мебелью и очаровательным ретро-декором. Помещение площадью всего 6,8 м² кажется гораздо просторнее благодаря продуманной планировке и палитре.
Нижние фасады гарнитура выкрасили в насыщенный желтый цвет, верхние — в лавандовый, а на стенах нежная вертикальная вагонка, создающая ощущение дополнительной высоты. Чтобы кухня не выглядела как игрушечная, добавили фактурную плитку с объемным узором и столешницу под дерево.
Обеденную зону оформили особенно деликатно. Здесь разместилась скамья с мягкой обивкой и встроенными ящиками для хранения, кресло из ротанга и круглый стол, собранный из винтажного основания и эмалированной столешницы цвета сирени.
На стене — милые «бабушкины» вышивки и светильник в форме колокола. Все это отсылает к атмосфере дач детства и делает интерьер живым и по-настоящему душевным.
Чтобы визуально объединить кухню с остальными зонами, проем в прихожую оставили открытым. Окно обрамили горчичной рамой и украсили клетчатыми занавесками — они пропускают свет, но создают приватность.
Каждый элемент здесь работает на ощущение покоя и летнее настроение: от золотистого потолка до расписных обоев с цветущими ветками в верхней части стен.
Особого внимания заслуживает принцип сборки кухни. Все материалы — самые простые: дерево, покраска, вагонка, плитка. Но именно сочетания фактур, оттенков и декоративных деталей делают интерьер уникальным и будто собранным вручную, с любовью к каждой мелочи.






