Часто кажется, что чем больше кухня, тем проще создать в ней функциональный и стильный интерьер. Однако и здесь часто возникают вопросы: как грамотно расставить мебель, чтобы и рабочая поверхность была достаточная, и осталось место для прохода? где разместить самое важное оборудование и приборы? как выбрать встроенную или отдельно стоящую технику?
И даже определиться с планировкой не всегда бывает достаточно – как не потеряться в разнообразии стилей и выбрать именно тот дизайн, который выгодно подчеркнет достоинства помещения? Сегодня вместе с профессионалами Mr.Doors рассмотрим варианты планировки и оформления кухни площадью 13,5 квадратного метра на примере трехкомнатной квартиры в доме серии «МПСМ».
Компания Mr.Doors создаёт индивидуальную встроенную и корпусную мебель с 1996 года. Опираясь на особенность помещений и учитывая пожелания и потребности заказчика, компания предлагает уникальные решения для любых жилых зон: кухонь, гостиных, спален, детских, кабинетов и прихожих.
Клиент может участвовать в процессе создания интерьера или же полностью положиться на вкус и профессионализм дизайнера Mr.Doors. Широкий выбор качественных материалов, аксессуаров и систем раздвижных дверей позволит воплотить в жизнь любые задумки клиента и создать удобный и уютный интерьер в современном, классическом или эклектичном стиле.
Вариант №1: кухня в стиле кантри
Задачи: разместить встроенную технику (духовой шкаф, варочную панель, вытяжку, посудомоечную машину); установить двухдверный холодильник; использовать преимущественно закрытые шкафы; поставить большой стол.
Решение: разместите кухонный гарнитур вдоль одной стены, а большой холодильник поставьте напротив. С такой расстановкой у вас появится удобная рабочая поверхность по обеим сторонам от плиты.
Рамные фасады из массива ясеня черного цвета с золотой патиной отлично впишутся в интерьер кухни в традиционном стиле. Хорошее решение – использовать встроенную технику: посудомоечную машину, духовой шкаф. Резной карниз, пилястры с розетками, балюстрады – эти элементы украшают мебель, дополняют интерьер кухни и подчеркивают высокий статус хозяев. Отлично смотрятся открытые полки над варочной панелью и раковиной – на них можно выставить красивый сервиз или стилизованные под старину банки с крупами.
Кухонный фартук из квадратной бежевой плитки и столешница из искусственного камня дополняют и подчеркивают текстуру дерева. Закажите раковину, встроенную в рабочую поверхность – она будет смотреться наиболее выигрышно. Обратите внимание на детали: медный смеситель и бронзовые ручки на шкафах идеально впишутся в интерьер в стиле кантри. Пол выложите метлахской плиткой – она выглядит, как роскошный ковер.
Для обеденной зоны выбирайте раздвижной прямоугольный стол: за ним поместится вся семья и гости. Отдайте предпочтение стульям с мягкими сиденьями в классическом стиле – помимо удобства, они выглядят благородно. Над обеденным столом стоит повесить люстру с рожками – в кухне всегда будет светло и уютно. Для подсветки рабочей поверхности установите споты в потолке и светодиодную ленту в верхних шкафчиках.
Плюсы и минусы: планировка выполняет все поставленные выше задачи. Здесь размещена необходимая встроенная техника, предусмотрено место для большого холодильника, есть достаточная рабочая поверхность, шкафы для хранения, вместительный стол для приема пищи. Недостаток такой планировки в том, что стена напротив окна почти не используется, а большой стол сужает проход на кухню.
Кому подойдет: кухня идеальна для семейной пары с детьми, любящей традиции и встречи с многочисленными родственниками и друзьями.
Вариант №2: современная кухня с глянцевыми фасадами
Задачи: разместить встроенную технику (двухдверный холодильник, духовой шкаф, кофе-машину, варочную панель, посудомоечную машину); предусмотреть закрытые шкафы для хранения; разместить обеденный стол, по возможности найти место для кухонного острова.
Решение: сделайте ставку на угловое размещение кухонного гарнитура – так вы используете все полезное пространство стен. С одной стороны разместите мойку, встроенную в рабочую поверхность. Напротив окна установите сплошные высокие шкафы, за фасадами которых спрячьте большой холодильник Side-by-Side – в нем точно хватит места для запаса продуктов для всей семьи. Там же разместите духовой шкаф и кофе-машину – хозяйке будет удобнее ими пользоваться. Для кухонного острова тоже найдется место – в него можно встроить электрическую варочную панель. Над ней разместите необычную вытяжку в виде белого купола. Таким образом, у вас получится удобный рабочий треугольник и появится много места для кулинарных экспериментов.
Гарнитур с глянцевыми фасадами коричневого и белого цветов отлично впишется в интерьер современной кухни. Обратите внимание на верхние шкафчики с системой открывания push-to-open – они удобные и практичные. Такой кухонный гарнитур – мечта любой хозяйки. Здесь огромное количество мест для хранения: верхние и нижние шкафы и дополнительные отделения в кухонном острове. В качестве фартука отлично будет смотреться белая ламинированная панель – из нее же сделана столешница.
Выберите компактный обеденный стол, чтобы он поместился между кухонным островом и балконной дверью. Для освещения рабочей зоны подойдут встроенные споты и LED-подсветка. Повесьте над столом несколько современных светильников – они создадут приятную расслабленную атмосферу.
Плюсы и минусы: пространство использовано по максимуму. Здесь размещена необходимая встроенная техника, есть большая рабочая поверхность, места для хранения спроектированы с запасом, кухонный остров с вынесенной варочной панелью, осталось пространство для обеденной зоны.
Кому подойдет: семейным парам с детьми и без, которые любят готовить и принимать гостей; холостяку или девушке, для которых кулинария – главное хобби; фуд-блогерам.
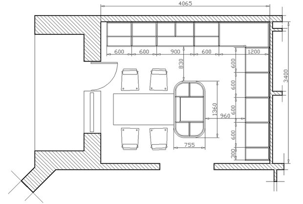
Вариант №3: кухня в классическом стиле
Задачи: разместить встроенную технику (духовой шкаф, варочную панель, посудомоечную машину); найти место для двухдверного холодильника; использовать закрытые шкафы для хранения; повесить рейлинги; разместить небольшой стол; предусмотреть второй вход на кухню.
Решение: линейное размещение кухонного гарнитура – удобный и универсальный прием. Установите мойку подальше от стены – так вы избежите попадания на нее брызг воды. Большой холодильник поставьте в углу напротив – здесь он не будет мешать перемещению людей по кухне.
Рамные МДФ-фасады в пленке, имитирующей текстуру крашеного дерева с патиной, отлично впишутся в интерьер кухни в классическом стиле. Хорошее решение – использовать встроенную технику: посудомоечную машину, вытяжку. А те приборы, которые постоянно на виду, например, духовой шкаф – выбрать стилизованными под классику или ретро. Дверцы со стеклянной вставкой смотрятся роскошно – за ними можно хранить семейную коллекцию фарфора.
Кухонный фартук из квадратной бежевой плитки с декоративным поясом и темная столешница из искусственного камня дополняют и подчеркивают текстуру дерева. Обратите внимание на детали: медный смеситель, бронзовые ручки на шкафах и подвесные рейлинги идеально впишутся в классический интерьер.
Для освещения рабочей зоны подойдут встроенные светильники и LED-подсветка. Выберите овальный обеденный стол – за ним можно разместить больше гостей. Повесьте над ним светильник с несколькими плафонами в классическом стиле – они создадут приятную расслабленную атмосферу.
Плюсы и минусы: планировка выполняет все поставленные выше задачи. Здесь размещена необходимая встроенная техника, в углу установили большой холодильник; есть достаточная рабочая поверхность, есть закрытые шкафы для хранения и подвесные рейлинги, вместительный стол для семьи и гостей. Неудобство может доставить дверь, открывающаяся в сторону холодильника — она усложняет доступ к продуктам.
Кому подойдет: семейным парам с детьми и без, которые любят готовить и принимать гостей.
Мнение эксперта о преимуществах предложенных планировок
Просторная кухня идеально подходит для больших семей и тех, кто любит готовить и делает это каждый день. В ней можно разместить множество зон для хранения продуктов, посуды и утвари. Мы попросили эксперта прокомментировать функциональность и дизайн кухонь от Mr.Doors.
Степан Бугаев – арт-директор архитектурного бюро «Победа дизайна». Степан любит чистые стили, питает слабость к Bauhaus и борется с засильем золотых унитазов. Под его руководством «Победа дизайна» дала жизнь более чем 300 интерьерам в лучших домах столицы.
Вариант №1: кухня с линейным гарнитуром – это удобно
Размещение кухонного гарнитура вдоль одной стены позволяет расположить плиту и мойку на довольно большом расстоянии друг от друга. Таким образом, увеличивается рабочая поверхность – это бесценно для тех, кто любит ежедневно радовать домочадцев вкусными блюдами. Отдельно стоящий холодильник черного цвета практически сливается с темно-серыми стенами – удается избежать контраста с выдержанным в этом интерьере стилем кантри.
Вариант №2: кухня с рабочим островом – очень современно
Одна стена в кухне выделена под рабочую поверхность и места для хранения, другая – под бытовую технику, посередине расположен остров с встроенной плитой, к которому примыкает обеденный стол – благодаря такому решению, хозяева могут одновременно готовить ужин и общаться с гостями. Кухня с минималистичным оформлением идеально подходит молодым и современным людям, которые ценят простоту и функциональность.
Вариант №3: кухня с холодильником Side-by-Side – для полноценной семьи
Большой двухдверный холодильник пригодится в большой семье – в нем поместится в два раза больше продуктов и можно будет отказаться от ежедневных походов в магазин. Линейный кухонный гарнитур с филенками на фасадах идеален для любителей простой и уютной классики. А чтобы современный функциональный холодильник не бросался в глаза, хорошее решение перенести его на противоположную от рабочей зоны стену.
От редакции: все дизайн-проекты кухонь и гостиных, представленные в материале, разработаны на основе каталога Mr.Doors.























