У этой комнаты интересная судьба. Самая большая (почти 30 метров) комната в «сталинке» на Московском проспекте Санкт-Петербурга по ряду причин долгие годы выполняла роль кладовой. Здесь было сложено все то, что не стоит показывать посторонним. Наконец хозяева решили все изменить: сделать из самой непритязательной комнаты самую парадную.
Остальные помещения тоже будут переделываться, но позже, поэтому гостиной предстоит сыграть стилеобразующую роль: она станет не просто местом, где семья будет собираться по вечерам, но и эталоном для оформления других комнат.
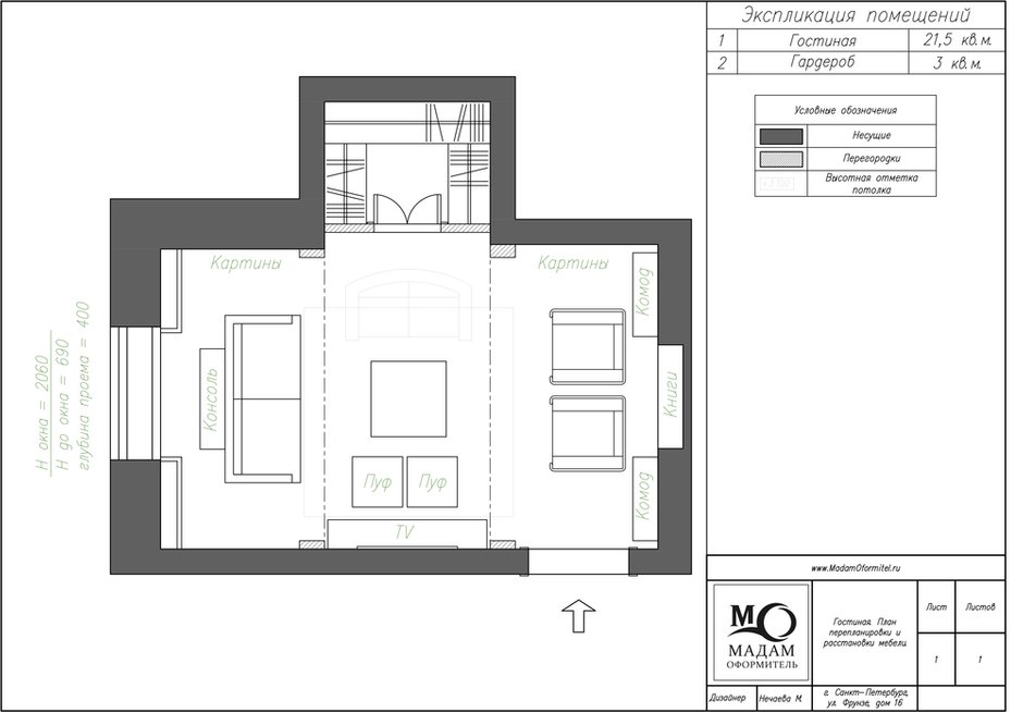
Переосмысливая пространство, дизайнер Мария Нечаева оставила память о его прошлом: за красивыми застекленными дверцами располагается скрытая гардеробная для шуб хозяйки дома.
Респектабельный облик гостиной придает отделка, простая и в то же время солидная: одна из стен украшена мраморными панно, на полу – модульный паркет. Мебель – микс известных зарубежных брендов и дизайнерской мебели российского производства. В диванную группу включили и антикварный хозяйский диванчик, который планируется переобить новой тканью.
Перепланировка
Бренды, представленные в проекте
Отделка: краска, Little Greene; слэбы натурального мрамора
Напольное покрытие: модульный паркет, Villa di Parchetti
Мебель: диван, Bernhardt Interiors; журнальный столик, кресла и тумбы, Caracole; комод и консоль, Rooma Design
Освещение: люстра, Artefacto.ru; бра, Visual Comfort & Co
Текстиль: собственного производства студии «Мадам Оформитель» с использованием тканей RMCOCO и бордюров Samuel & Sons
Хотите, чтобы ваш проект был опубликован на INMYROOM? Присылайте фотографии интерьера на wow@inmyroom.ru
Читайте также:
Создайте интерьер с товарами из магазина InMyRoom:



























