Заказчики хотели получить теплый, уютный интерьер, в котором они чувствовали бы себя максимально комфортно. Положительные эмоции у них вызывали простые формы, сочетание белых и серых оттенков со светлым деревом, геометрические узоры и природные мотивы, поэтому при создании интерьера квартиры было решено ориентироваться на скандинавский стиль.
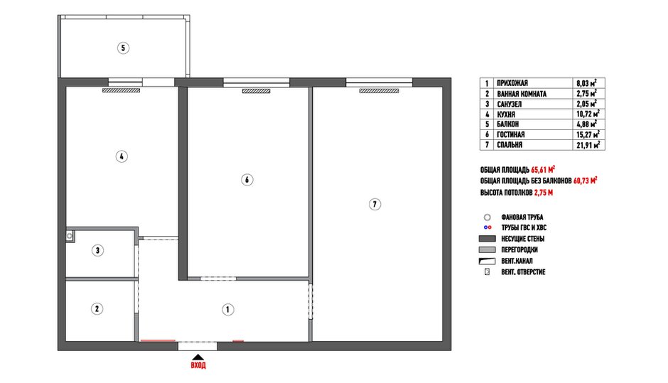
Объединить кухню с гостиной, чтобы общая зона была светлой и просторной, как хотелось заказчикам, помешала несущая стена. Дизайнер предложил другое решение: снести глухую перегородку между гостиной и прихожей, а вместо нее выстроить прозрачную, стеклянную, в черной раме. Пространство гостиной визуально увеличилось, но формально она изолирована от прихожей.
Функции хранения возложили на спальню: при входе организовали небольшую, но вместительную гардеробную для одежды и крупных хозяйственных предметов, а рядом с дверью – шкаф. Книги владельцы квартиры могут хранить на лоджии – там предусмотрен закрытый стеллаж.
Цветовое решение построено на сочетании серого и цвета светлого дерева с рыжеватым оттенком. Яркие акценты в интерьер вносит мебель: зеленый диван, желтое кресло и верхние ящики на кухне, терракотовые стулья. Природные, естественные цвета делают обстановку живой и уютной.
Планировка
Бренды, представленные в проекте
Прихожая
Отделка: краска, Benjamin Moore
Напольное покрытие: керамогранит, Inalco Ceramica
Мебель: изготавливается на заказ по чертежам дизайнера
Гостиная
Отделка: краска, Benjamin Moore
Напольное покрытие: инженерная доска, Wood Bee
Мебель: диван и тумба, изготавливаются на заказ по чертежам дизайнера; столик, BoConcept; кресло и оттоманка, Cosmorelax
Текстиль: Sitap; Zara HOME
Освещение: торшер, Ceci Thompson
Спальня
Отделка: краска, Benjamin Moore; обои, Cole & Son
Напольное покрытие: инженерная доска, Wood Bee
Мебель: кровать, Bonaldo; прикроватные тумбочки, Cosmorelax, IDEA; рабочий стол, сделан на заказ по чертежам дизайнера
Текстиль: Zara HOME
Освещение: бра, Illuminator; подвесные светильники, Cosmorelax
Кухня
Отделка: краска, Benjamin Moore; обои, Borastapeter
Напольное покрытие: инженерная доска, Wood Bee
Мебель: обеденный стол, Cosmorelax; cтулья, Calligaris; гарнитур, PlazaReal; полки, ИКЕА
Санузел
Отделка: плитка, Tonalite; краска, Benjamin Moore
Напольное покрытие: керамогранит, Inalco Ceramica
Мебель: тумба и шкаф, сделаны на заказ по чертежам дизайнера; раковина, Villeroy & Boch
Хотите, чтобы ваш проект был опубликован на INMYROOM? Присылайте фотографии интерьера на wow@inmyroom.ru



























