Кинокартина режиссера, посвятившего огромную часть жизни фэшн-индустрии, не может быть неинтересной по определению — уже хотя бы с точки зрения дизайна.
Вместе со специалистами компании Mr.Doors мы проанализировали работу художников-постановщиков киноленты, уделив особое внимание кухонному пространству главной героини Сьюзан Морроу. Практичные решения, задействованные в обстановке фильма, и стильные предметы для создания такой же у себя дома прилагаются.
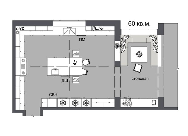
Чем хороша кухня Сьюзан?
Роскошный особняк, в котором по сюжету живет владелица арт-галереи Сьюзан вместе с мужем Хаттоном, крупным финансистом, на время съемок был арендован у американского мультимиллионера Курта Раппапорта.
При помощи эксклюзивной обстановки и предметов искусства создатели фильма хотели продемонстрировать высокий статус пары, а особенной работой с цветом подчеркнуть холодность их брака.
Обратите внимание: на экране интерьер выглядит мрачноватым, хотя вне съемочного процесса особняк намного жизнерадостнее, а планировка и внутреннее обустройство дома продуманы с удобством и практичностью.
Кухня и примыкающая к ней столовая выдержаны в едином минималистичном и респектабельном стиле, как и весь дом. Переходы из одной зоны к другой почти незаметны, что делает интерьер супругов Морроу открытым и комфортным для их многочисленных гостей, ведь устраивать деловые приемы или ужины в доме обязывает положение в обществе.
О том, что в доме часто бывают посетители, говорит и обилие шкафчиков, и современной бытовой техники: достаточное количество посуды и свежих продуктов у гостеприимных хозяев всегда под рукой. Для хранения продуктов, например, предусмотрели сразу два встроенных холодильника и винный шкаф.
Посередине кухни находится большой остров с зоной для приема пищи. Над ним предусмотрели удобный стеллаж с кухонной утварью, чтобы Сьюзан могла легко дотянуться до самого необходимого.
Декора самый минимум. Роль акцентов в доме играют необычные арт-объекты, дорогая живопись и фото, подчеркивающие принадлежность Сьюзан к миру искусства и ее хороший вкус.
Планировка кухни
Мебель, свет и аксессуары
В кадре максимально сдержанная обстановка, без сомнения, будет выглядеть эффектно. А в жизни наверняка «потребует» декора. Впрочем, и в арт-жилище Сьюзан ему нашлось место: хозяйка утонченной кухни разместила на подоконнике аутентичные кувшины и цветочные горшки. Останется дополнить такую обстановку рустикальной мебелью и расставить кухонную утварь с эффектом состаренности и следами ручного труда.
Про картины и предметы искусства тоже не стоит забывать — они хороши в любом интерьере.
С экрана — в жизнь: проект кухни Mr.Doors
Дизайнеры компании Mr.Doors решили представить, как выглядела бы такая кухня в реальной жизни, и предложили собственную, адаптированную к кинопространству версию — стильную и детально проработанную.
Как и в фильме, в отделке стен, потолков и фасадов кухни и столовой использовано много дерева с богатой, выразительной фактурой. Этот материал — хорошее связующее звено зон готовки и приема пищи с жилыми комнатами.
Если большие «дозы» дерева в интерьере — это слишком, в гостиной можно оставить открытый стеллаж, созвучный дереву фасадов кухни. Такой элемент интерьера задействован и в кино, и в проекте Mr.Doors.
Для отделки рабочих поверхностей, столешниц и моек выбрали бетон — он уравновесил дерево. Кстати, бетон хорош не только рядом с деревом, но и с другими фактурами, например, с нержавеющей сталью, в которой выполнено кухонное оборудование в проекте, и любыми черными поверхностями, например, со смесителями и стеллажом для кухонной утвари.

Компания Mr.Doors создает индивидуальную встроенную и корпусную мебель с 1996 года. Опираясь на особенность помещений и учитывая пожелания и потребности заказчика, компания предлагает уникальные решения для любых жилых зон: кухонь, гостиных, спален, детских, кабинетов и прихожих.
Некоторые особенности кухни Сьюзан дизайнеры Mr.Doors адаптировали к реальной жизни. Например, убрали полку для телевизора: наверняка этот предмет уже имеется в гостиной, которая фактически объединена с кухней.
Кроме того, эксперты предложили более эргономичную фурнитуру, сделав ручки шкафчиков длиннее и тоньше для удобного захвата и комфортного использования.











