Работать над квартирой-головоломкой дизайнеру Индре Сунклодене не впервой: интерьер в Вильнюсе из ее портфолио, о котором мы рассказывали раньше, тоже полон хитрых приемов и трюков.
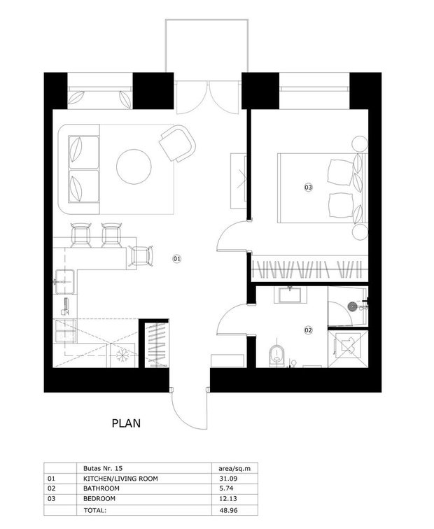
Но эта двушка впечатляет сильнее. Здесь 49 квадратов — а кажется, что квартира больше. Трюк номер один: Индре придумала оформить и стену, и двери декоративными панелями, создавая ощущение, что дверей в спальню и санузел и нет вовсе. Их выдает только фурнитура.
Другой трюк — зеркальные фасады. За ними Индре спрятала гардеробную, задействовав зеркальную отделку еще и в зоне кухни. Так в квартире появилось больше света и воздуха.
Вообще кухня в этом интерьере — пожалуй, главный «игрок». Несмотря на малые размеры, она спланирована п-образно и имеет достаточное количество шкафчиков и полок. Кроме того, кухня плавно перетекает в обеденную зону, тоже довольно просторную. Вишенка на торте — удобное открытое хранение для бутылок, добавляющее интерьеру лоска и дороговизны.
Приглушенные оттенки в сочетании с теплыми металлами очень популярны в проектах Индре. Этот интерьер построен на оттенках серого с синим. Чтобы сдержанная палитра не выглядела скучной, Индре включила ее в обстановку при помощи графичных паттернов и фактурных тканей.
В спальне дизайнер решила обить изголовье кровати твидом, набросить шерстяное одеяло и оклеить стену обоями с эффектом омбре. В санузлах положили черно-белую плитку в стиле пэчворк, а в гостиной паттерны появились… на потолке. Отражаясь в зеркальных фасадах кухни, они добавляют интерьеру динамики и шарма.
Поскольку хранение спрятано, а двери надежно замаскированы, ничто не отвлекает внимание от красивой мебели, тактильных материалов и безупречно спланированного пространства. Что и требовалось.
















