Вкратце
Хозяева дома — семья из четырех человек. Они обратились к дизайнеру Татьяне Петровой, чтобы проработать планировку имеющегося пространства дома, сделав его максимально удобным для каждого члена семьи. В целях экономии заказчики попросили разработать дизайн только для холла и гостиной с кухней, а остальные помещения дома они продумывали сами.
Стиль определили как классический, цветовую гамму выбрали нейтральную, а все материалы должны были быть износоустойчивыми, так как у заказчиков двое маленьких детей. По сути этот дом должен был стать спокойным фоном для яркой семьи.
Подробности
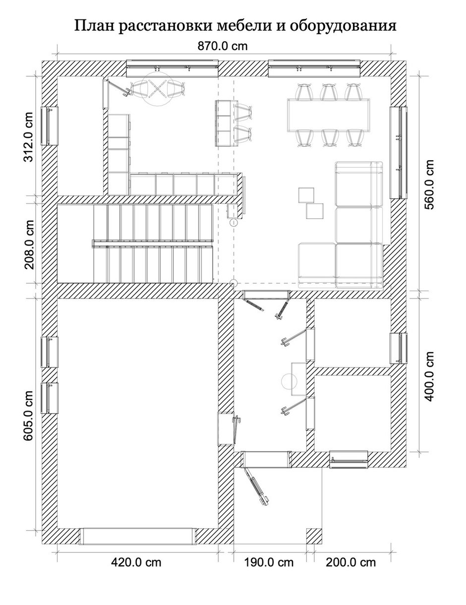
В процессе стройки немного изменили изначальную задумку по холлу, убрали перегородку посередине, сделали дверь в гараж скрытой, отделили гардеробную стеной с дверью. Чтобы добавить свет в холл, входную дверь выбрали с остеклением. Кухню объединили с гостиной, чтобы сделать несколько зон. Диван установили так, чтобы напротив была перегородка с закрепленным на ней телевизором. Из гостиной ведет лестница на второй этаж.
«Особенность кухни — в ее многофункциональности. Нужно было разместить в общем пространстве и большой стол для праздничных посиделок, и маленький — для быстрых завтраков. Чтобы разделить пространства, но не изолировать их друг от друга, я предложила сделать остров. Он визуально отгораживает кухню от столовой и гостиной.
Наполнение должно было стать максимально функциональным, поскольку хозяйка умеет и любит готовить для семьи и гостей. Технику встроили в высокие колонны — это крыло кухни ограничено дверью в топочную, ее сделали скрытой и декорировали молдингами. Вытяжку над варочной поверхностью выделили крупным шкафом — она стала центральной точкой композиции», — рассказывает дизайнер.
Отделка универсальная: стены выровняли и покрасили в приятный нейтральный оттенок. В зоне гостиной использовали ненавязчивые обои в качестве акцента. На полу — ламинат. Дизайнер предложила подступенки лестницы выложить плиткой, а не деревом. Это было технически сложно исполнить, но результат теперь радует заказчиков.
Цветовая гамма кухни-гостиной очень спокойная: это пожелание заказчиков — они хотели дома отдыхать от ярких красок. Поэтому для гарнитура выбрали белый цвет, разбавив его фартуком красивого серо-оливкового цвета и золотой фурнитурой. Кухню изготавливали по эскизам дизайнера, диван и стулья также сделали на заказ у местных производителей, чтобы использовать одинаковые материалы. Большой стол и барные стулья нашли в ИКЕА.
Планировка
Бренды, представленные в проекте
Кухня
Отделка: плитка, Vives
Напольное покрытие: плитка, Vives
Мебель: стулья, ИКЕА
Бытовая техника: духовка и варочная поверхность, Bosch
Освещение: Favourite Angular; Loft IT Loft
Гостиная
Отделка: Borastapeter
Мебель: столики, Garda Decor
Освещение: люстра, Favourite
Хотите, чтобы ваш проект был опубликован на INMYROOM? Присылайте фотографии интерьера на wow@inmyroom.ru




















