Вкратце
Ольга Бикбова оформила трехкомнатную квартиру 128 кв. м для семьи из трех человек. Заказчики, веселые, радушные, активные и гостеприимные, хотели получить интерьер, поднимающий настроение, создающий ощущение приближающегося праздника и радости. При этом обстановка должна была быть функциональной и не перегруженной. Дизайнер предусмотрела кухню для ежедневной готовки, большой раздвижной обеденный стол, удобную для душевного общения мягкую зону, а также комфортные спальню и детскую, выразительную и нескучную. Конечно, не забыли про вместительные системы хранения и разнообразные сценарии освещения.
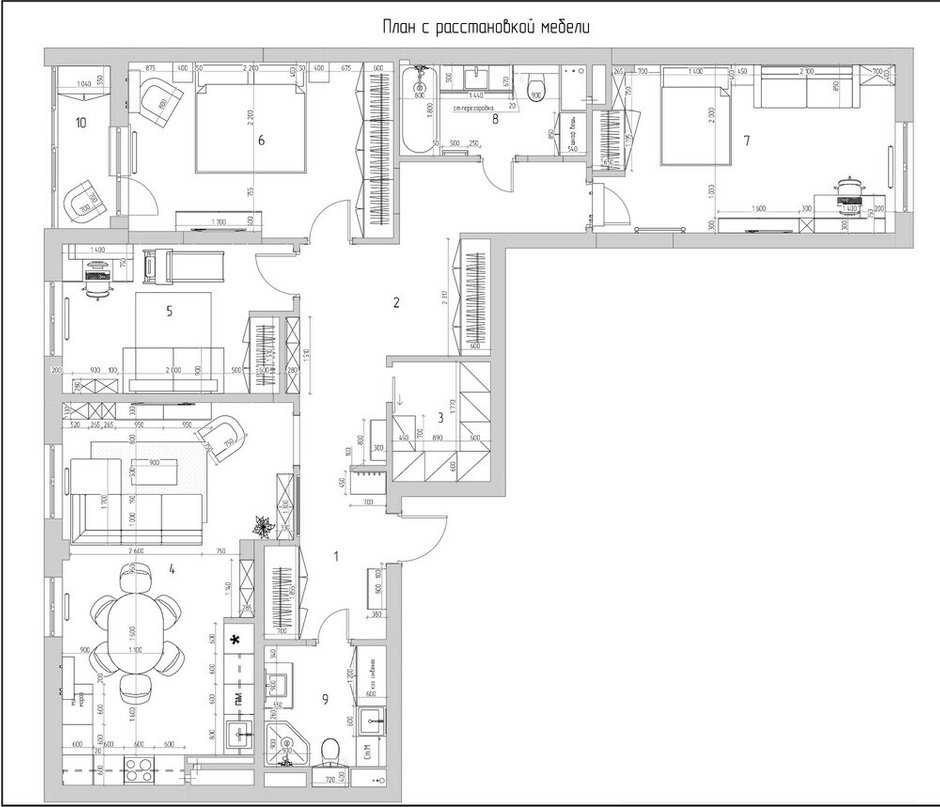
Подробности
Во время ремонта сделали незначительную перепланировку. Придали функциональности длинному пустому коридору, разместив в нем гардеробную и красивый акцентный шкаф. Слегка увеличили прихожую, сделав ее более просторной и удобной. И перенесли дверной проем в спальне, получив место для вместительного гардероба.
Кухня выполнена на заказ. За элегантными фасадами прячется все необходимое. Холодильник состоит из одной камеры, а морозильная камера встроенная, под столешницей. В этой кухне закрытое хранение сочетается с открытыми полками, а также присутствует красивая витрина для фужеров и сервизов, которая уютно подсвечивается по вечерам.
В отделке стен прихожей использована декоративная штукатурка. В остальных помещениях — обои. Одну из стен детской комнаты украшает эффектная авторская роспись, выполненная самарским художником Алиной Кучма. В санузлах — плитка, керамогранит. В ванной комнате часть стены отделана зеркалом, в которое интегрированs бра и розетки.
«Уникальная деталь — фотография цветка над ярко-голубой консолью в прихожей. Этот снимок сделала самарский фотограф Татьяна Киселева специально для нашего интерьера. Найти пион нужного оттенка в несезон — настоящий квест, но оно того стоило. Цветок точно живой, хочется рассматривать каждую его деталь, оттенок, каплю росы. Работа добавляет пространству свежести и нежности, а также в композиции с консолью и маленькими симпатичными пуфиками является фокусной точкой интерьера», — делится автор проекта.
Системы хранения продумывались с особым вниманием. При их проектировании учитывались все пожелания хозяев по функциональности. Корпусная мебель выполнена по эскизам дизайнера на заказ.
На площади в почти 20 кв. м расположилось все, что нужно сыну-школьнику: удобная кровать, рабочий стол, хранение для книг, игрушек, гардероб и открытый стеллаж для коллекции моделек. Также есть небольшой диванчик для приема друзей, чтобы вместе поиграть в PlayStation или посмотреть фильм.
Обратите внимание на видео:
Гостевой санузел выполняет и функцию постирочной. За красивыми дверками шкафа хранятся хозяйственный инвентарь, бытовая химия. Также здесь присутствуют две раковины: так называемая техническая и основная «нарядная». Особого внимания заслуживает керамогранит на полу помещения. Он похож на бездонное синее море.
В ванной комнате расслабляющая атмосфера. Удобная ванна, большое зеркало, просторная столешница, чтобы под рукой было все необходимое, а также вместительная тумба красивого пыльно-розового оттенка и встроенный в нишу шкаф для халатов и запасных полотенец. В отделке использован керамогранит Italon.
Бренды, представленные в проекте
Кухня-гостиная
Мебель: гарнитур, мебель в зоне ТВ, книжный шкаф, New Line Design
Смесители и мойка: Omoikiri
Освещение: Maytoni; Odeon Light
Текстиль и декор: Textura House
Санузлы
Отделка: Italon, Kerama Marazzi
Сантехника: Villeroy & Boch
Смесители: Grohe
Освещение: Maytoni
Двери: «Волховец»
Прихожая
Отделка: декоративная штукатурка, Lanors; обои, Milassa
Мебель: консоль, TorySun; пуфики под консолью, La Redoute
Декор: иллюстрации, Vintage Cover; интерьерная фотография, автор Татьяна Киселева
Освещение: Odeon Light
Двери: «Волховец»
Спальня
Отделка: обои, Borosan; декоративная штукатурка, Lanors
Текстиль и декор: шторы, Textura House; постер, Somodernart
Детская
Отделка: роспись, художник Алина Кучма
Освещение: Lumion Light
Хотите, чтобы ваш проект был опубликован на INMYROOM? Присылайте фотографии интерьера на wow@inmyroom.ru







































