Владельцы квартиры в жилом комплексе «Жемчужный Фрегат» в Санкт-Петербурге – открытая ко всему новому семейная пара с ребенком. Именно эту легкость и постарались передать специалисты архитектурной студии Background при работе над проектом. Чтобы наполнить пространство воздухом, гостиную и кухню объединили, отделив новую комнату от холла и зоны спален.
После перепланировки в холле появилось место для полноценной гардеробной с системой хранения длиной
Системы хранения, которых немало в этом проекте, тщательно замаскированы. Дизайнеры выбрали минималистичные мебельные фасады из дерева медового оттенка, которые использовали не только на шкафах и кухонном гарнитуре, но и на стенах. Благодаря этому крупные предметы мебели будто растворяются. Например, совершенно незаметными стал шкаф во всю стену и комод в спальне, тумба под телевизором в гостиной.
Текстура и фактура поверхностей – главная отличительная особенность этого проекта. Металл, глянцевый лак и зеркала отражают дневной свет, многократно усиливают его и создают ощущение солнечного дня при любой погоде. Это особенно важно для жителей Санкт-Петербурга. Кроме того, дизайнеры подобрали двери из матового стекла, чтобы свет беспрепятственно проходил из помещения в помещение, вне зависимости от того, какая сторона солнечная.
Несмотря на обилие холодных материалов, квартира не стала менее уютной. Эффект от журнальных столиков из металла, мебели со стеклянными и глянцевыми поверхностями смягчает текстиль – двухслойные шторы, подушки и пледы. Центром объединенной кухни-гостиной, где вечерами можно собираться всей семьей и проводить время с друзьями, стал большой угловой диван с тканевой обивкой.
Современный и минималистичный дизайн этой квартиры не требует дополнительных декоративных элементов. Исключение составляют разве что цветы. Даже осветительные приборы подобраны точечные, либо сдержанных форм и оттенков. Ощущения высоких потолков и парящей в воздухе ванны добились благодаря подсветке светодиодной лентой. А особого внимания заслуживает конструкция из подвесов над обеденной группой, которая привлекает внимание к этой зоне.
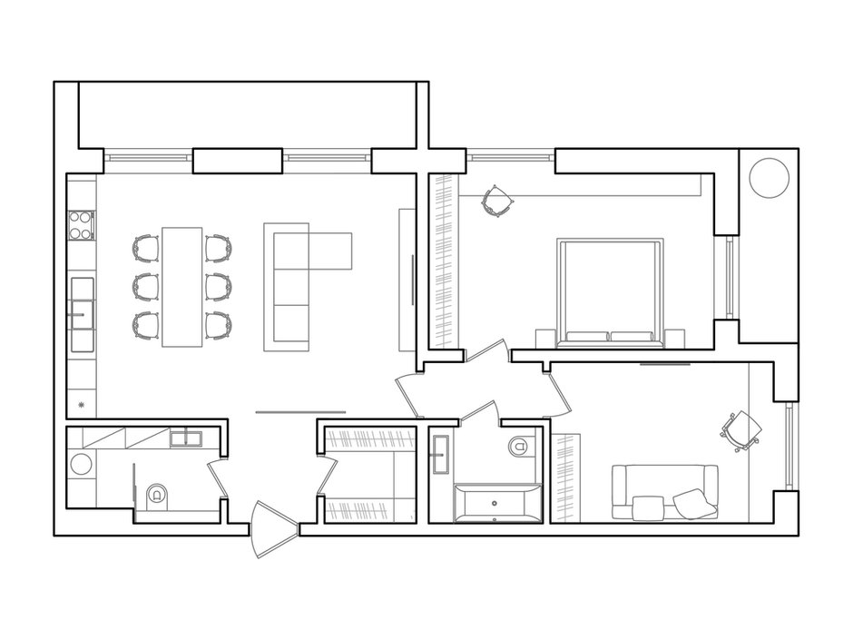
Планировка
Хотите, чтобы ваш проект был опубликован на INMYROOM? Присылайте фотографии интерьера на wow@inmyroom.ru
Создайте интерьер с товарами из магазина INMYROOM:




































