Вкратце
Дизайнеры переиграли планировку этой трешки таким образом, что получились просторная кухня-гостиная, два санузла и большое количество систем хранения. Свободные метры наполнили яркой мебелью, сверкающими светильниками и эффектными деталями в совершенно разной стилистике.
Подробности
Здесь будет жить молодая девушка, которая в этом году только поступила в университет и стала обладательницей квартиры в новом доме в историческом центре Петербурга. В проекте также предусмотрена комната для родителей, через какое-то время ее можно будет переделать в детскую.
«Мы уже давно работаем с этими заказчиками и их предпочтения знаем на интуитивном уровне, а они в свою очередь нам полностью доверяют, — рассказывают дизайнеры Макс Жуков и Виктор Штефан из ToTaste Studio. — Было сразу понятно, что необходим функциональный, яркий и смелый интерьер, в котором заказчице будет не только комфортно, но еще и не скучно. Основная функциональная задача, которая стояла в этом проекте, — оформить большую кухню-гостиную как место основного времяпрепровождения».
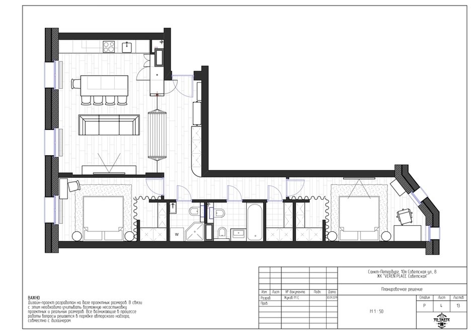
Перепланировка была необходима. Зал объединили с кухней и ненужным коридором-прихожей. То есть теперь, заходя в квартиру, сразу попадаешь в светлое пространство с лососевым потолком и огромным гамаком. Плюс поменяли конфигурацию функциональных помещений, расположенных между двумя спальнями. Создали более правильное и компактное расположение всех приборов, получилось уместить два полноценных санузла, в одном из которых есть биде, а в другом — постирочная. Плюс еще осталось место для нужной и очень функциональной кладовки.
«Основная фишка этого проекта — огромный потолок-арка лососевого цвета, который плавно переходит в стену за кухней с одной стороны и стену коридора с другой. Она, в свою очередь, скрывает входы в санузлы», — рассказывает Макс Жуков.
Материал отделки стен везде один — это краска. В интерьере достаточное количество разных фишек и элементов, поэтому поверхности стен стали нейтральным светлым фоном, а основной «цветовой удар» на себя принял потолок. В спальнях потолки оставили бетонными — только покрыли их лаком.
Санузла два. В основном стены и пол облицованы двумя видами плитки: серая под камень и белая под мрамор. Также, чтобы поддержать основное помещение, потолок покрасили в глубоко-оливковый оттенок — это любимый цвет заказчиков. Второй санузел, который совмещает в себе функции гостевого туалета и постирочной зоны, облицован простой белой плиткой — чтобы не перегружать небольшое пространство.
Систем хранения много, и все имеют разную функцию. Есть кладовка, плюс в спальнях предусмотрены собственные гардеробные. В гостиной разместили большой шкаф-стеллаж, который органично вписался в общий дизайн — его будут делать на заказ в мебельной мастерской.
«Год назад мы посетили Марракеш, до сих пор не могу отойти от невероятного буйства цветов и красок, которые там есть. Мы и раньше любили сложный цвет и яркие краски в интерьерах, но теперь понимаем, что если уж „праздник“, то по полной! Сложные и глубокие цвета не обошли и этот проект: к тому же мы знали, что заказчики готовы к экспериментам», — рассказывает Макс Жуков.
Мебель подбирали, исходя из цветовых предпочтений. Так как дизайнерам хотелось сделать интерьер с нотками эклектики, они сочетали элементы в разных стилях. Добавили немного этнических, грубых лофтовых и простых минималистичных деталей, чтобы вместе сложилась приятная картина.
Визуализатор: Игорь Крайнов
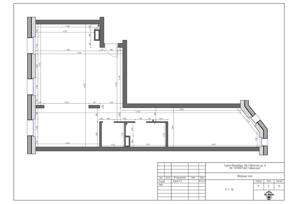
Планировка
Бренды, представленные в проекте
Холл
Отделка: краска, Tikkurila
Мебель: консоль, Archpole
Кухня-гостиная
Отделка: краска, Tikkurila
Мебель: диван, мастерская «Кресло»; шкаф и кухонный гарнитур, «Мебель Виктора Тишлера»
Техника: ТВ, Samsung
Освещение: люстра, Handle Studio; светильник над столовой, VIBIA; бра над ТВ, Lampe Gras; встроенные гипсовые светильники, «Зенит»
Бытовая техника: Asko
Смесители: Omoikiri
Спальни
Отделка: краска, Tikkurila
Мебель: кровать, «Аскона»; письменный стол и прикроватные тумбы, The IDEA; модули, ИКЕА; консоль, Archpole
Освещение: люстры, ИКЕА
Ванные комнаты
Отделка: Italon; Atlas Concorde; Vogue; Equipe
Гарнитур: Archpole
Санфаянс: Сielo; Duravit
Смесители: Grohe
Хотите, чтобы ваш проект был опубликован на INMYROOM? Присылайте фотографии интерьера на wow@inmyroom.ru
































