Вкратце
Дизайнер Наталья Балашова оформила функциональный интерьер в скандинавском стиле с камином и домашним баром. Общие зоны дома максимально открытые и плавно перетекают друг в друга, а пространство под лестничным маршем использовали для хранения.
Подробности
Изначально был только контур стен с обозначенными «мокрыми» зонами. Дизайнер обустроила на первом этаже общественное пространство с кухней с островом и барной стойкой, гостиной, столовой и местом для отдыха у окна. Под лестницей организовали хранение: часть была отдана под кладовую с удобным доступом. Вторую часть занимает большой стеллаж, в котором «растворяется» рабочее место. На втором мансардном этаже расположены жилые комнаты и два санузла.
Кухня была сделана на заказ. Высота шкафов — 2,7 метра: помимо основных шкафов есть еще и антресоль. В правой части расположены большой двухкамерный холодильник и колонна с духовым шкафом и СВЧ. В центральной части — варочная панель, мойка находится слева, за мойкой начинается внешний угол кухни, перетекающий в домашний бар. Посудомоечная машина размещена в островной части, которая помимо этого служит дополнительным местом для хранения, а также просто уютным уголком для чаепития.
В отделке были использованы материалы, традиционные для скандинавского стиля: много белого цвета, изделия из натурального дерева. Фишка — использование стеклоблоков в котельной и санузле для дополнительного естественного освещения. Плитка в санузлах также достаточно лаконичная, имитирует дерево и камень.
При входе в дом расположена небольшая гардеробная, рядом с ней находится постирочная с местом для хранения бытовой химии и белья. На втором этаже в мастер-спальне есть гардероб, комод и пара прикроватных тумбочек, в детской организована небольшая гардеробная в игровой системе, в гостевой комнате расположен небольшой встроенный шкаф.
«Мебель выбирали по принципу скандинавской рациональности: например, был выбран хороший, качественный пол, на заказ были сделаны стеллаж и кладовая под лестницей, но при этом многое куплено в ИКЕА. Все это в совокупности выглядит гармонично», — говорит Наталья Балашова.
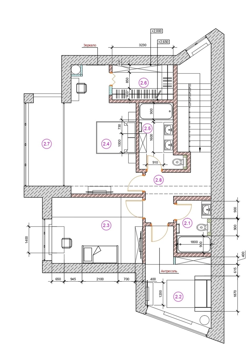
Планировка
Бренды, представленные в проекте
Кухня
Отделка: краска, Sherwin-Williams
Напольное покрытие: Finex
Мебель: ИКЕА; стулья, Montly
Гарнитур: кухни «Анонс»
Бытовая техника: Samsung
Смесители: ИКЕА
Мойка: ИКЕА
Гостиная
Отделка: краска, Sherwin-Williams
Напольное покрытие: Finex
Текстиль и декор: ИКЕА
Техника: Samsung
Ванная комната
Отделка: керамогранит, Italon, Atlas concorde
Сантехника: унитаз, Gustavsberg; ванна, Roca
Декор: ИКЕА
Смесители: Grohe
Прихожая
Отделка: краска, Sherwin-Williams
Напольное покрытие: Finex; керамогранит, Equipe
Мебель: ИКЕА
Спальня
Отделка: краска, Sherwin-Williams
Напольное покрытие: Finex
Мебель: кровать, ИКЕА
Текстиль и декор: ИКЕА; Kare design
Техника: Samsung
Хотите, чтобы ваш проект был опубликован на INMYROOM? Присылайте фотографии интерьера на wow@inmyroom.ru
















