Вкратце
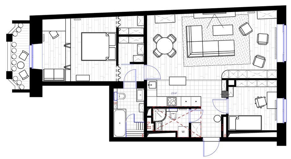
Дизайнеры из студии ToTaste снова удивляют ярким и эффектным дизайном квартиры для семьи с ребенком. На 80 квадратных метрах требовалось сделать достаточно много разнообразных зон, чтобы всем членам семьи было комфортно. Хотелось обустроить просторную общую зону и не забыть про приватные места, где можно отдохнуть и расслабиться. Задачи планировки усложнялись небольшим количеством окон на имеющуюся площадь и общим количеством несущих конструкций.
Подробности
Планировку от застройщика пришлось переделывать. На месте кухни сделали детскую комнату, чтобы в ней было окно. А гарнитур перенесли на площадь коридора и части санузла. Благодаря этому удалось сделать кухню-гостиную с зонами отдыха, выделить целый родительский блок со спальней, кабинетом, вместительной гардеробной и своим санузлом с сауной.
«Фишка интерьера — это определенно красная кухня-ниша. Она как истинное сердце всего проекта стоит в самом центре „организма“, она призвана собирать вокруг себя всех членов семьи и их гостей. Хозяева часто готовят, поэтому в этом месте они будут проводить много времени», — говорит Макс Жуков.
Спальню разделили на несколько зон: непосредственно спальная часть, зона работы и отдыха у окна и гардеробная, скрытая за шторами.
Детская получилась компактная, но в ней есть все необходимое для комфортной жизни. Ее оформили в более спокойных приглушенных серых и серо-синих тонах, но не обошлось без ярких деталей — потолок сделали горчичным.
Санузлы спокойных песочных и серых оттенков. Детский санузел компактный и невысокий, так как над всей площадью санузла располагается антресольный уровень для дополнительного хранения (доступ из прихожей). Родительский санузел при спальне большего размера и включает встроенную одноместную сауну.
Бренды, представленные в проекте
Кухня-гостиная
Напольное покрытие: плитка по эскизам дизайнеров, «Каменная мануфактура»
Бытовая техника: Asko
Смесители: Omoikiri
Мойка: Blanco
Освещение: La Redoute
Ванная комната
Отделка: Atlas Concorde
Напольное покрытие: Atlas Concorde
Сантехника: Geberit
Смесители: Wassercraft
Прихожая
Напольное покрытие: плитка по эскизам дизайнеров, «Каменная мануфактура»
Спальня
Мебель: Archpole
Детская
Мебель: La Redoute
Освещение: La Redoute
Хотите, чтобы ваш проект был опубликован на INMYROOM? Присылайте фотографии интерьера на wow@inmyroom.ru







































