Вкратце
Заказчики пригласили дизайнера оформить квартиру для своей мамы. Основной задачей было создать удобный, функциональный интерьер с большим количеством мест для хранения, обновить обстановку, добавить ярких красок. При этом учесть перспективу дальнейшей продажи или сдачи в аренду.
Подробности
Изначально в доме типовая планировка, но качество стен оставляло желать лучшего, поэтому был осуществлен полный демонтаж.
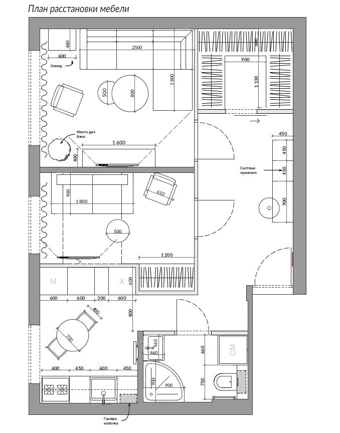
«Зонирование не сильно отличается от оригинального плана: есть изолированная кухня и две жилые комнаты. Но я добавила гардеробную комнату и постаралась избежать отдельно стоящих шкафов. Кухню расширили за счет встроенной ниши и перенесли газовую колонку из ванной на свое законное место на кухне — ее спрятали за фасадом», — рассказывает Зина Малышева.
Так как кухонная зона довольно маленькая, дизайнер решила компенсировать места для хранения встроенными в нишу шкафами. Здесь спрятали холодильник, микроволновую печь, также довольно много ящиков и полок, есть даже выкатной «аптекарский» ящик. В зоне, где располагаются плита и мойка, за верхними шкафами спрятали газовую колонку, газовые трубы и счетчики, вытяжку.
Санузел совмещенный, для расширения пространства в качестве отделки выбрали вертикально уложенную белую плитку в сочетании с темной графитовой затиркой и темным полом. Теплый оттенок дерева позволил сделать ванную более уютной.
Также преимуществом стала установка душевой кабины без возведения подиума. Так как квартира находится на первом этаже и при демонтаже снимали весь пол, то удалось сразу предусмотреть установку трапа в новый залитый пол и тем самым избежать высокого порога в душевую.
Для отделки дизайнер использовала однотонные обои — это позволило сэкономить время и деньги на подготовке стен. В качестве напольного покрытия выбрали ПВХ-плитку — она достойно выглядит и более практичная, чем ламинат.
Цветовая палитра интерьера — от серого до насыщенного синего оттенка. Квартира находится на северной стороне — делать ее в мрачных тонах было бы преступлением. Каждая комната выполнена в своей цветовой гамме, но при этом все смотрится целостно за счет нюансов в текстиле, в декоре.
Планировка
Фото квартиры до ремонта:
Бренды, представленные в проекте
Холл
Отделка: обои, Milassa
Напольное покрытие: керамогранит, Fioranese
Мебель: система хранения, Dios Mebel
Двери: межкомнатные двери, Profil Doors
Освещение: бра, Odeon Light; встроенные светильники, Citilux
Гостиная
Отделка: обои, Milassa
Напольное покрытие: ПВХ, Moduleo Select
Мебель: комод и тумба под ТВ, ИКЕА
Ковер: ИКЕА
Текстиль: Zara Home; портьеры, T-studio
Декор: постеры, Cara Alamre
Освещение: встроенные светильники, Citilux; настольный светильник, Zara Home
Спальня
Отделка: обои, Milassa
Напольное покрытие: ПВХ, Moduleo Select
Мебель: диван, Pushe; шкаф, Dios Mebel; стол журнальный, ИКЕА
Ковер: La Redoute
Текстиль: портьеры сшиты на заказ компанией T-studio
Освещение: бра, Odeon Light; встроенные светильники, Citilux
Кухня
Отделка: обои, Milassa; плитка на фартук, Fioranese
Напольное покрытие: ПВХ, Moduleo Select
Мебель: обеденный стол, La Redoute; стулья, AnniHaus
Гарнитур: Dios Mebel
Бытовая техника: Teka
Смесители: Blanco
Освещение: спот, SLV; встроенные светильники, Citilux
Ванная комната
Отделка: настенная плитка, Equipe
Напольное покрытие: керамогранит, Novabell; мозаика, Kerama Marazzi
Гарнитур: тумба под раковину и шкаф, Dios Mebel
Санфаянс: душевое ограждение, BelBagno
Смесители: Hansgrohe
Освещение: Novotech
Хотите, чтобы ваш проект был опубликован на INMYROOM? Присылайте фотографии интерьера на wow@inmyroom.ru

















