Вкратце
Ирина Долганова оформила квартиру в небанальном скандинавском стиле в новостройке ПИК. Заказчица — молодая девушка — хотела выделить спальню и сделать кухню с зоной гостиной. Делать сплошную перегородку не стали, чтобы не перегружать пространство: задачу зонирования решили визуально с помощью цвета и стильных реек на стене.
Подробности
Изначально в квартире была типовая планировка от застройщика. «Я предложила несколько вариантов перепланировки заказчикам: два из них с отдельной гардеробной, но они выбрали вариант с тремя шкафами.
Это увеличило стоимость ремонта, но зато мы смогли обыграть красивую плитку на полу в коридоре и завязали ее с синим шкафом на заказ, цвет которого подобрали по RAL в цвет нашей плитки, — рассказывает Ирина Долганова. — Еще мы немного уменьшили площадь спальни за счет шкафа и за счет расширения гостиной — это было необходимо для комфортного просмотра телевизора».
Гарнитур изготовлен на заказ у известного производителя. Варочная панель на две конфорки, высокий шкаф со встроенной духовкой, небольшая посудомойка, много выдвижных ящиков и верхние шкафчики. Холодильник вынесли в шкаф в коридоре.
Во всей квартире на стенах использовали краску Little Greene двух оттенков: серый French Grey 113 и синий Woad 251. На пол решили положить ламинат и керамическую плитку во влажных зонах.
Мебели в интерьере немного. Выбирали все недорогое и бюджетное: два шкафа сделаны на заказ в частной мастерской, диван выбрали с возможностью разобрать его для гостей, кровать с подъемным механизмом. За счет насыщенного цвета стен даже простая однотонная мебель выглядит эффектно.
В спальне стену за изголовьем кровати украсили ручной росписью, ее сделала художница Женя Светлова. Роспись создавали после покупки ткани на шторы. Задача была подобрать и завязать все цвета в интерьере.
В квартире есть три полноценных шкафа. Два шкафа в прихожей: один при входе для хранения верхней одежды, в нем предусмотрены ящики и полки.
Шкаф напротив входа был задуман как хозяйственный. Там есть розетка для пылесоса, место для хранения гладильной доски, различные полки — там же расположился холодильник. Третий шкаф находится в спальне. Для экономии бюджета дизайнер сразу предусмотрела там стандартный шкаф ИКЕА и спроектировала нишу под него.
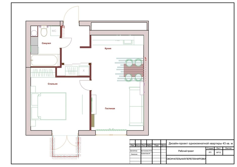
Планировка
Бренды, представленные в проекте
Кухня-гостиная
Отделка: краска, Little Greene; плитка, Peronda
Напольное покрытие: ламинат, Homflor
Гарнитур: «Кухни Мария»
Бытовая техника: Indesit
Ванная комната
Отделка: плитка, Kerama Marazzi
Напольное покрытие: плитка, Peronda
Прихожая
Отделка: краска, Little Greene; рейки, @reiki.club
Напольное покрытие: плитка, Peronda
Спальня
Отделка: краска, Little Greene
Напольное покрытие: ламинат, Homflor
Мебель: шкафы, прикроватные тумбы, комод, все — ИКЕА
Хотите, чтобы ваш проект был опубликован на INMYROOM? Присылайте фотографии интерьера на wow@inmyroom.ru





















