Вкратце
В этой квартире живет молодая девушка, юрист в строительной компании, вместе со своим любимым питомцем французским бульдогом. Четкого представления о стиле и цвете интерьера у заказчицы не было, но стояли ясные задачи по зонированию помещений. Было обязательно предусмотреть отдельную спальню, кабинет — гостевую комнату, кухню с обеденной зоной и просторной гостиной, ванную комнату, гостевой санузел и гардеробную. Реализовать свои пожелания хозяйка пригласила дизайнера Карину Неделяй.
Подробности
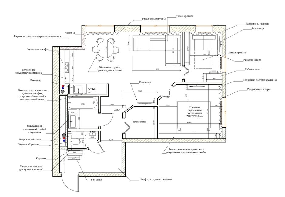
Дизайнер проработала семь вариантов планировочных решений, что позволило заказчице максимально правильно оценить имеющуюся площадь и запрос на ее функциональное назначение. В итоге спроектировали два полноценных закрытых помещения для отдыха и работы, большое многофункциональное пространство, в котором разместили кухню, обеденную зону, место отдыха и приема гостей, а также отдельную вместительную комнату-гардеробную.
Кухонный гарнитур подобран с верхней и нижней системой хранения от пола до потолка. За фасадами расположены встроенный холодильник, стиральная машина, посудомоечная машина, ящики для хранения круп и посуды, сушка для посуды и бокалов. В единой колонне размещены встроенный духовой шкаф с функцией микроволновой печи, что позволило сэкономить пространство под дополнительную систему хранения.
За декоративной черной 3D-стеной в столовой скрывается потайная дверь в холодную кладовую и зону размещения наружного блока кондиционера. Стена выполнена по индивидуальному заказу: мастером на месте выполнялся расчет толщины и ширины рейки, чтобы при создании общего полотна максимально скрыть дверь и при этом сохранить ее полное открывание.
Для стен выбрали английские краски с возможностью влажной уборки. Напольное покрытие бельгийского производства в двух цветах. «Уникальность покрытия — в его влагостойкости и возможности укладки единым полотном без порожков. В нашем случае два цвета смешались в единую концепцию с плавным переходом друг в друга», — рассказывает дизайнер.
В квартире предусмотрена отдельная гардеробная комната для хранения обуви, верхней и повседневной одежды, гладильной доски с полочкой для утюга, пылесоса с удобным креплением-зарядкой на стене. Система хранения приобретена в ИКЕА и собрана с учетом нужд заказчицы.
В коридоре уже после проведения съемки был установлен большой зеркальный шкаф от пола до потолка по индивидуальным чертежам. За счет зеркала он совершенно растворился в помещении, но при этом сохранил свое прямое назначение и вместил систему хранения верхней одежды, обуви, сумок и шляп.
«Вся мебель, в том числе кровать и диваны, выполнена по моим чертежам. За счет индивидуальных размеров, цвета и фактуры подобрать готовые решения не было возможности. Это делает проект уникальным, ведь все создано в единственном экземпляре. Самым долгим был поиск дивана желаемого зеленого бутылочно-травянистого цвета. В итоге его сделали на заказ и сэкономили 250 тысяч рублей, — рассказывает Карина Неделяй.
— Картина девушки в коридоре написана специально для этого проекта художницей из Красноярска и отражает саму заказчицу — стильный образ девушки с распущенными волосами и загадочно скрытым лицом».
Стена в изголовье кровати оклеена бельгийскими обоями. На графитовом фоне размещены геометричные, едва заметные золотые элементы — они выглядят сдержанно и при этом перекликаются с латунными вставками изголовья кровати и деталями на люстре. Материал изготовления — флизелин: нетканая основа прочна, проницаема и эластична. Она обеспечивает точную стыковку кромок обоев и позволяет получить визуальный эффект бесшовного полотна. В геометрическом узоре прослеживается технологичность, поэтому он больше подходит для современных стилей.
В спальне две прикроватные тумбы, одна из них заведомо увеличена в два раза и больше похожа на комод. Именно такую функцию она и выполняет: в ней хранится нижнее белье, носки и пижамы. Кровать с подъемным механизмом и двумя вместительными ящиками в ее основании позволяет разместить запасное постельное белье, коробки с вещами не первой необходимости и межсезонную обувь. Для книг и бумаг напротив кровати предусмотрена консоль с подвесным шкафом.
В ванной комнате выполнена комбинированная отделка: нижняя часть выложена испанским керамогранитом размера 600×1200 мм, выше стены окрашены влагостойкой краской, а для стены за ванной нашли уникальное решение — плитка с 3D-фактурой красивого сине-бирюзового цвета. Напольное покрытие — природного оттенка.
Отделка ниш для хранения средств личной гигиены и вентиляционного короба выполнена в мозаике Kerama Marazzi. При бюджетной стоимости она не уступает по качеству аналогичным материалам, но с более высокой ценой. Это позволило сэкономить часть бюджета.
Гостевая туалетная комната также выполнена в комбинированной отделке, только на месте краски разместили флизелиновые обои. Плитку для стен и пола выбрали в компании Italon. Фактура пола напоминает словно отколотый и лишь слегка заполированный природный камень.
Планировка
Бренды, представленные в проекте
Кухня
Отделка: краска, Farrow & Ball
Напольное покрытие: Aquafloor
Гарнитур: «Кухонный двор»
Бытовая техника: духовой шкаф с функцией микроволновой печи, Smeg; стиральная и посудомоечная машины, Bosсh
Смесители: Omoikiri
Мойка: Omoikiri
Гостиная
Отделка: краска, Little Greene, Farrow & Ball
Напольное покрытие: Aquafloor
Мебель: столик с мраморной столешницей, Zara Home
Текстиль и декор: ваза желтая, Rich line home decor; картина, Жанна Манска; подушки, La Forma и ИКЕА
Техника: Samsung
Ванная комната
Отделка: керамогранит, Cicogres; краска, Sherwin-Williams; плитка, Marca Corona; мозаика, Kerama Marazzi
Напольное покрытие: Atlas Concorde
Сантехника: раковина, Excellent; кнопка для смыва и инсталляция смыва, Villeroy & Boch; ванна из литьевого мрамора, Astra Form; унитаз, Villeroy & Boch
Декор: Miralls
Смесители: Ganzer
Освещение: потолочный светильник, Lightstar
Гостевой санузел
Отделка: флизелиновые обои, Holden Decor; плитка, Italon
Напольное покрытие: Italon
Освещение: потолочный светодиодный светильник, Novotech
Прихожая
Отделка: краска, Farrow & Ball
Напольное покрытие: керамогранит, Italon
Мебель: пуф, ИКЕА
Спальня
Отделка: обои, Hookedonwalls; краска, Little Greene
Напольное покрытие: Aquafloor
Техника: Samsung
Хотите, чтобы ваш проект был опубликован на INMYROOM? Присылайте фотографии интерьера на wow@inmyroom.ru




















