Вкратце
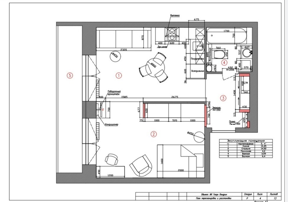
Эту квартиру дизайнер Ирина Викторова оформила для сдачи в аренду. Эргономика, бюджет и стиль — основные задачи, которые надо было решить в проекте. Владельцам хотелось создать запоминающуюся квартиру, которая понравится многим жильцам. Основные зоны оставили на месте, организовав кухню, столовую, гостиную, спальню и рабочее место на 43 квадратных метрах.
Подробности
Планировка от застройщика предполагала изолированную жилую комнату и кухню-гостиную. В результате перепланировки вход в спальню сделали из зоны гостиной. Кухонный гарнитур из ИКЕА расположили углом и оснастили всей необходимой бытовой техникой: варочная поверхность, духовой шкаф, вытяжка, холодильник, посудомоечная машина.
Бюджет на ремонт был небольшой, поэтому в качестве напольного покрытия взяли ламинат и керамогранит. На стенах — обои под покраску, краска — Dulux. Также для экономии сделали натяжные потолки.
Чтобы разнообразить универсальный интерьер, добавили цвета на стене в изголовье кровати. Плюс использовали много цветных деталей в виде текстиля и декоративных вещей. Это те элементы, которые можно менять по настроению.
В санузле тоже все лаконично: на стенах белая плитка, которая никогда не выйдет из моды. Вместо очень контрастной черной затирки выбрали серую — она тоже придает интерьеру атмосферу Скандинавии, но при этом не бросается в глаза. Аксессуары и фурнитура — черные.
Бренды, представленные в проекте
Кухня
Отделка: плитка, Kerama Marazzi; плитка, Dual Gres
Мебель: кухня, ИКЕА; шкаф, Leroy Merlin
Бытовая техника: Whirlpool
Смесители: Villeroy & Boch
Мойка: ИКЕА
Ванная комната
Отделка: плитка, Kerama Marazzi; краска, Dulux
Напольное покрытие: керамогранит, Dual Gres
Мебель для ванной: Villeroy & Boch
Сантехника и смесители: Villeroy & Boch
Прихожая
Отделка: краска, Dulux
Напольное покрытие: керамогранит, Dual Gres
Мебель: Leroy Merlin
Спальня
Отделка: краска, Dulux
Мебель: кровать, шкафы, прикроватные тумбы, все — ИКЕА
Текстиль и декор: ИКЕА; H&M Home
Хотите, чтобы ваш проект был опубликован на INMYROOM? Присылайте фотографии интерьера на wow@inmyroom.ru










