Вкратце
Архитекторы из бюро Zrobim Architects оформили квартиру в Минске для молодой семьи с двумя детьми и большим лабрадором. Основная идея — создать комфортный интерьер, где вся жизнь протекает в центре квартиры и в то же время у каждого есть свой укромный уголок. Получилась идеальная квартира для отдыха и общения с нестандартными решениями и акцентами — стеклянной раздвижной перегородкой, большим мягким модульным диваном, стеллажом для сувениров из разных стран, множеством картин и декора.
Подробности
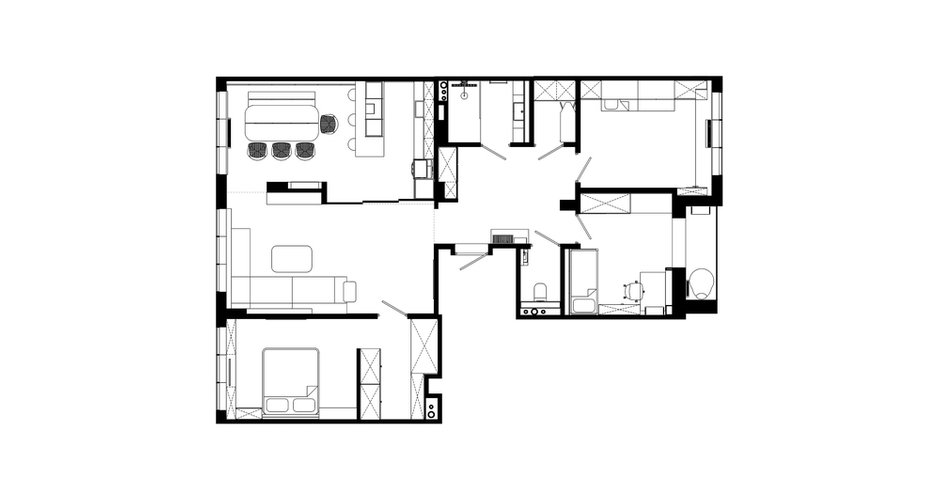
Площадь, над которой работали архитекторы, — это результат объединения двух смежных квартир со свободной планировкой. Зонирование создавали с нуля. С одной стороны, расположение мокрых зон обеих квартир позволило получить несколько вариантов размещения кухни и санузлов. С другой — наличие центральных несущих колонн существенно ограничивало свободу действий. В результате после перепланировки выделили кухню-столовую, гостиную, спальню с большой гардеробной, две детские комнаты, раздельный санузел, небольшую хозяйственную комнату и прихожую.
Кухня осталась на своем месте и трансформировалась в кухню-столовую, а электрическая варочная панель была вынесена на отдельный островок с необычным исполнением конструкции приточно-вытяжной вентиляции. На стене возле кухонного острова использована полоска керамогранита, «утопленная» в стену и размещенная там для того, чтобы защитить стену от брызг, разлетающихся от плиты.
Пространство кухни и столовой объединяет линейная отбивка из шпонированных панелей, которые по дизайну повторяют фасады кухни. В зоне столовой они специально смонтированы с отступом от стены в 7 см. Заказчики используют этот бортик как полку, постепенно заполняя ее картинами, фотографиями, аксессуарами. Кроме того, панели защищают стены от грязи и возможных царапин.
В интерьере много дерева темных насыщенных оттенков, которое подчеркивает его экологичность. Другие цвета использованы в приглушенных вариантах, это создает определенный комфорт. Все дополнили композициями на стенах, которые создала художница специально для этого проекта.
«В гостиной вместо декоративной штукатурки, чтобы акцентировать стену за диваном, применили технику двухцветной выкраски. Для этого взяли два схожих оттенка из одного цветового ряда, отличающиеся буквально на один-два тона, нанесли базовый слой, а потом при помощи марли уже «пачкали» стену вторым слоем. В итоге поверхность выглядит фактурной и неравномерной. Также на стенах гостиной и спальни добавили искусственную рустовку. Чтобы создать такие линии, еще по сырой шпаклевке делали разрыв в армирующей фибросетке», — рассказывают авторы проекта.
«В детских комнатах мы продумали зонирование таким образом, чтобы спальные места находились немного за углом. Так ребенок, который спит на кровати, не будет сразу виден тому, кто входит в комнату, — психологически это считается правильным и более комфортным», — рассказывают архитекторы.
Санузел в квартире раздельный, но выполнен в одной стилистике — использовали керамическую плитку одной цветовой гаммы. В ванной комнате особое внимание уделили свету, чтобы наносить косметику. Также предусмотрели большую душевую кабину, чтобы удобно было купать собаку после прогулки.
Металлические полочки и выдвижную консоль для обуви делали на заказ у местных мастеров. Две «полоски» света (настенные бра) несут определенные функции. То, что закреплено на шкафу, обеспечивает свет человеку, стоящему у зеркала. Второе на стене — «аварийное»: его родители оставляют включенным на ночь для детей.
Хотите, чтобы ваш проект был опубликован на INMYROOM? Присылайте фотографии интерьера на wow@inmyroom.ru


























