В недавнем интервью INMYROOM успешный российский дизайнер и декоратор Анна Муравина призналась, что ей не приходилось заниматься дизайном малогабариток... до тех пор, пока она не купила маленькую квартиру в Геленджике. Самую обычную, как у всех. С крохотной прихожей и двумя комнатами-вагончиками.
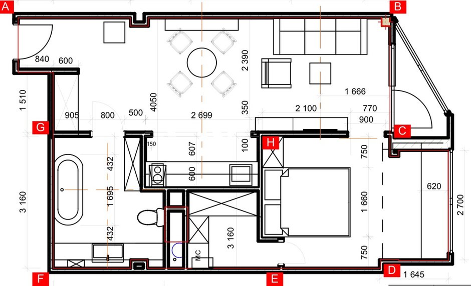
«Предполагалось, что в одной разместится кухня, в другой – спальня, – рассказывает Анна. – С планировкой я возилась очень долго, стараясь учесть каждый сантиметр. Посмотрите на новый план этой квартиры: на 52 квадратных метрах мне удалось найти место для спальни, гостиной-столовой-кухни, большой ванной комнаты и кладовки-гардеробной». Все перегородки были ненесущими, поэтому согласовать перепланировку не составило труда.
Проработав планировку, Анна перешла к второй части — созданию иллюзий. В маленьких пространствах без этого никак. Раздвинуть стены помогает универсальный прием — использовать один цвет для всех стен в квартире, одно напольное покрытие — для всех помещений.
«Попробуйте выкрасить потолок в один цвет со стенами — вы в буквальном смысле сотрете границы и сделаете пространство визуально больше, — советует Анна. — Чтобы совсем забыть о высоте потолка, попробуйте внести контрастный акцент — изящный кант по периметру потолка. Можно пойти дальше и покрасить в цвет стен двери».
Еще один способ расширить пространство — использовать встроенную мебель (в квартире Анны Муравиной в Геленжике почти все встроенные системы хранения и кухню изготовили в компании Mrs Ruby, используя шпон нескольких ценных пород дерева в сочетании с эмалью).
Отдельно стоящих предметов в маленькой квартире должно быть немного, и каждый из них должен быть интересным и уникальным. Или содержать скрытые возможности, как, например, кровать с подъемным механизмом. Анна считает, что это отличное место для хранения.
Создавая иллюзии, никак нельзя забыть про зеркала. Они отлично работают в любом пространстве, но в маленьком просто необходимы. Анна считает, что особенно хорошо справляются с дополнительными функциями состаренные. В своей квартире в Геленджике она сделала в ванной целую стену из состаренного зеркального полотна. Смотрится эффектно и не боится капель воды — из-за неоднородности покрытия их попросту не видно.
Такое же зеркало заменяет кухонный фартук — и это тоже очень функциональное решение. А в спальне круглые зеркальца работают как маленькие солнца — отражают естественный свет, вносят в пространство элемент игры и добавляют радости.
Планировка
Еще больше фото квартиры Анны Муравиной здесь.
Хотите, чтобы ваш проект был опубликован на INMYROOM? Присылайте фотографии интерьера на wow@inmyroom.ru








