Вкратце
Архитектор Максим Новиньков оформил интерьер двухкомнатной
квартиры для молодого холостяка. C просторной кухней-гостиной, спальней с гардеробной и совмещенным санузлом. Все помещения объединили цветовой палитрой — нейтральный серый здесь соседствует с «пламенными» акцентами.
Подробности
Заказчик — молодой человек со свободным графиком работы, много времени проводит дома. Хотел получить современный, яркий интерьер, который долго будет оставаться модным.
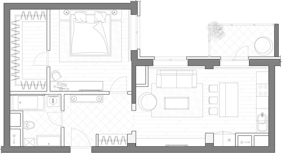
Работу над проектом архитектор Максим Новиньков начал с перепланировки — она была минимальной. Во-первых, объединили кухню и гостиную, чтобы увеличить полезное пространство. Во-вторых, выделили в спальне отдельную гардеробную. Переделывать санузел и присоединять балкон не стали.
В основе интерьера — нейтральные стены, окрашенные в светло-серый цвет. Это универсальный оттенок: он не выглядит «грязным» в сумерках, при этом является идеальным фоном для более ярких элементов. На пол положили натуральное дерево, а в санузел выбрали плитку крупного формата.
«Мест для хранения здесь достаточно: шкаф в прихожей, ящики под телевизором, кухня с островом, за которым с одной стороны можно завтракать, с другой — готовить. Гардеробную спроектировали с учетом эргономики: вешалки и полки на удобной высоте плюс предусмотрели место под чемоданы, коробки, крупногабаритные предметы, которые используются довольно редко», — рассказывает автор проекта.
Акцентный цвет — красно-оранжевый. Он делает интерьер теплее, мягче, что очень актуально в московское межсезонье. Яркими сделали тканевые панели и тумбочки в спальне, фасады на кухне: их уравновешивают и подчеркивают серые фоновые оттенки.
«Основную часть мебели я привез из заграницы, — рассказывает Максим Новиньков. — Кухня — итальянская фабрики Arredo 3, диван, кровать, тумбочки, письменный стол и мебель под телевизором — Pianca, консоль в прихожей — Eichholtz (все мои любимые фабрики). А вот красное кресло купили в Москве, как и кофейный столик».
От люстр в центре комнаты отказались полностью: исключение — акцентный светильник над островом. Свет в интерьере скорее для создания настроения — это лампы около кровати и торшеры в гостиной.
Финальный штрих — текстиль. Для украшения окон выбрали однотонные оранжево-красные шторы в складку. А на пол постелили ковры Jerome Botanic — стало еще уютнее.












