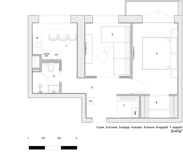
Новая дорога, 1
Проект: Новая дорога, 1
Расположение: Москва,
ул. Новая дорога, 1
Назначение: Квартира для постоянного проживания
Общая площадь: 47 m²
Год: 2018
Дизайн: Твердов Н.
https://www.tverdov.com/novaya-doroga-1
Еще портфолио от Николай, +7 926 375 15 06 Твердов

ЖК ART
ЖК ART
Расположение: Красногорск, ЖК ART
Назначение: Квартира для постоянного проживания
Общая площадь: 50 m2
Год: 2018
Дизайн: Твердов Николай
https://www.tverdov.com/zhk-art

3ья-Песчаная
Расположение: Москва, 3-ья песчаная ул.
Назначение: Квартира для постоянного проживания
Общая площадь: 70 m2
Год: 2017
Дизайн: Твердов Николай
https://www.tverdov.com/3-ya-peschanaya

Авеню 77












